たまろぐ
テツ的あれこれ妄想牧場。(※路線≒会社の擬人化前提注意です)
最近は管理人の備忘録と化してます。
×
[PR]上記の広告は3ヶ月以上新規記事投稿のないブログに表示されています。新しい記事を書く事で広告が消えます。
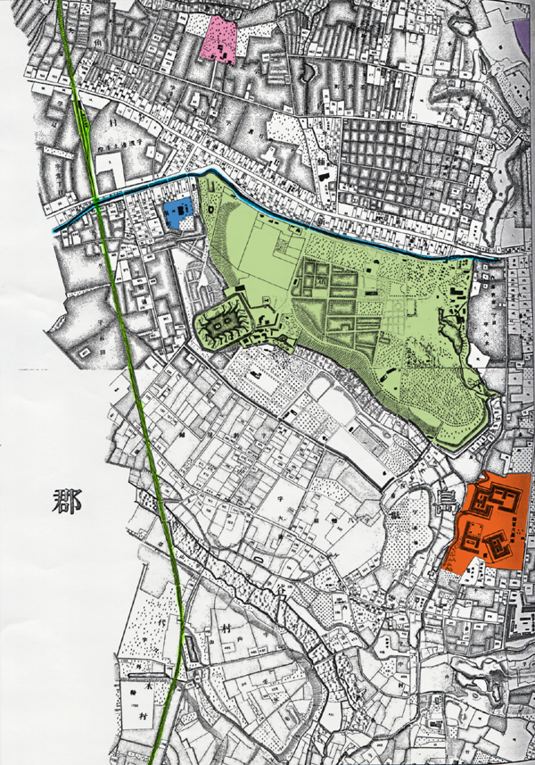
このあいだの聖蹟の話題、引き出しが高校生のときのうすらぼやっとした記憶のみで
歴史的な経緯とかろくな事が話せなかったので、こりゃまずいと思い、数年ぶりに関戸の図書館で
郷土資料をあさってきました。
借りてきた本は『連光聖蹟録』で発行が昭和3年です。聖蹟記念館の設立と同時期に出した物っぽい。
発行所の聖蹟奉頌連光会の番地がなぜか代々幡笹塚だったんで思わず、京王が書いたんじゃないよね?と疑ってしまいました。(本社があった)・・・それはともかく、これによると、
明治14年2月20日 明治天皇、八王子行幸の過程で神奈川県南多摩郡連光寺村に御兎狩
明治14年6月2日 明治天皇、府中行幸で同県同郡同村多摩川へ鮎御漁
明治15年2月15日~16日 明治天皇、同県同郡同村へ御兎狩
明治17年3月29日~30日 明治天皇、同県同郡同村へ御兎狩
明治18年9月22日 昭憲皇太后、同県同郡同村へ鮎御漁
明治20年8月21日 大正天皇(明宮殿下)同県同郡同村多摩川へ鮎御漁
明治20年10月3日 英照皇太后宮、同県同郡同村多摩川へ鮎御漁
明治20年10月17日 大正天皇(明宮殿下)同県同郡同村へ栗の実、菌御採収
明治21年10月17日 大正天皇(皇太子殿下)同県同郡同村へ地理御見学
明治25年7月1日 大正天皇(皇太子殿下)同県同郡多摩村字連光寺多摩川へ鮎御漁
明治26年10月8日 大正天皇(皇太子殿下)東京府南多摩郡多摩村字連光寺多摩川へ鮎御漁
明治33年10月7日 大正天皇(皇太子殿下)同府同郡同村字連光寺へ鳥類御猟
明治40年8月2日 大正天皇(皇太子殿下)同府同郡同村字連光寺多摩川へ鮎御漁
明治41年6月7日 大正天皇(皇太子殿下)同府同郡同村字連光寺多摩川へ鮎御漁
明治42年7月18日 大正天皇(皇太子殿下)同府同郡同村字連光寺多摩川へ鮎御漁
明治43年7月18日 泰宮親王殿下、同府同郡同村字連光寺多摩川へ鮎御漁
大正2年8月7日 今上陛下(東宮殿下)同府同郡同村字連光寺多摩川へ鮎御漁
で、明治天皇の行幸は4回(兎狩りは3回で鮎漁が1回)までだけど、
その後は皇族の方の行楽地となって、大正天皇なんて9回もきている。
その後、多摩御陵に葬られたことを思うと、多摩が大スッキだったのは
むしろ大正天皇の方だったのかも・・・ね。今上陛下というのは昭和天皇のことですね。
ところが『多摩と甲州道中』(新井勝紘・松本三善夫編/吉川弘文館)に行幸の回数だけでいえば、
そんなめずらしくもないし「比類のない」場所とするのは困難をともなう的な書かれ方をしていて、
「なんだとこのやろうっ」と。
たしかに多摩市はこれといった歴史に乏しい(さがすと14、5世紀まで遡らなきゃいけない)土地だから、これを逃さない手はないという後半の観光資源化の説明には同意できますが、その論理はなんとも乱暴じゃないかと反論してみたくなった。
『連光聖蹟録』に載っている、多摩村長の富澤政賢さんのお話(昭和3年2月19日東京中央放送局にて放送)によると、明治天皇はいつも国務に励まれ侍従が心配してもなかなか休まれることがなかった、
そんな中、明治6年8月の箱根宮への行幸と、八王子及び府中の兎狩りが治世間唯一のご静養遊山に類する行幸であった。ただし皇后陛下、皇太子殿下、内親王様方の御保養はいつも快くお許しになり、時には自らお促しになった。
そんな(公務ではなく)心遊ばせる場所として連光寺をお選びになった、ということが栄誉なわけであって、単純に数のみで「比類ない」と豪語した訳でもないようです。
実際に『明治天皇行幸年表』で数えてみると
公務以外で一番多い行き先は、吹上御苑のようです。これは千代田城内にあり、ようするに庭です。
次がおそらく植物御苑(新宿御苑)で明治13年~19年に回数が集中しています。
明治12年に宮内省管轄になったので、こちらもこのころ皇室の庭であった関係からでしょう。
公務で言うと戸山陸軍学校や士官学校の式典臨席・演習御覧にたびたび赴いていますし、
横須賀行幸・千葉習志野行幸もこれは軍艦に試乗したり、演習を御覧になったりして回数は多いです。
横浜行幸や浜離宮延遼館に行くことも多いですが、こちらは半分は国賓をもてなすためです。
公務(軍事関係)か私事か、分類に困るのが「競馬」です。
横浜行幸のもう半分の用が、この競馬天覧で、日本競馬会競馬場が横浜市にあり
これめあてにたびたび行幸しています。
ほかにも牛込区戸山町の戸山共同競馬会社や、芝区三田四国町の三田興農競馬会へも
たびたび競馬天覧で行幸しているので、これはもう趣味の分類でいいかもしれません。
さて、巡幸のような大規模な移動は一応公務に分類して、先の静養遊山の類の行幸を数えてみますと、
明治3年閏10月29日~11月2日 大宮行幸(氷川神社に参拝)浦和に2泊
明治4年12月2日 浜離宮 狩猟天覧
明治5年10月8日 王子飛鳥山行幸 紅葉天覧
明治6年3月6日 蒲田行幸 梅屋敷で御観梅
明治6年4月14日~17日 鎌倉行幸 鶴岡八幡参拝、江之島 漁猟天覧・八幡宮に2泊、藤沢に1泊
明治6年8月3日~31 箱根宮行幸 小田原海辺 鯛網天覧、塔ノ沢 鮎漁天覧、
芦ノ湖 湖上にて漁猟天覧・藤沢に2泊、小田原に2泊、箱根に23泊
明治9年5月4日 麻生区市兵衛町 静寛院宮邸 皇后宮御同列で能楽天覧
明治14年2月6日(世田谷区)駒沢行幸 兎狩天覧
明治14年2月10日 吹上 近衛隊練兵天覧並兎狩天覧
明治14年2月18日~21日 八王子行幸 兎狩天覧◎府中に1泊
明治14年4月26日 吹上 観桜会
明治14年5月9日 麻布区四ノ橋 島津忠義別邸 犬追物・相撲天覧
明治14年6月2日~3日 府中行幸 鮎漁天覧◎府中に1泊
明治14年11月16日 赤坂離宮 観菊会
明治15年2月9日 植物御苑 鴨猟を行はせらる
明治15年2月14日~17日 府中行幸 兎狩天覧◎府中に3泊
明治16年4月23日 小金井行幸 桜花天覧
明治16年4月24日 浜離宮 観桜会
明治17年3月19日 小向井行幸 梅屋敷で御観梅
明治17年3月28日~31日 府中行幸 兎狩天覧◎府中に3泊
明治17年11月17日 植物御苑 鴨猟天覧
明治17年12月26日 浜離宮 鴨猟天覧
さすがに遊山の類が箱根と連光寺だけって訳ではないですが、この時点でたしかに最多ではある。
滞在日数も、他と比べると長期です(同じ所に3泊)。
ネットでヒットした「幕末資料館」(http://hobby.life.coocan.jp/bkmts/meiten3.htm)によると
天皇の狩猟天覧は浜離宮や新宿御苑や赤坂仮皇居で行われいたが、皇居内で近衛を用いて兎狩りをする事に批判があり、郊外の狩猟地の開発が急務であったという。
明治4年の浜離宮の狩猟や明治14年の吹上の兎狩天覧がその一例でしょうか。
とくに吹上にはしょっちゅう出向いている(用事は記載されていない)ので、ここに書かれていない所でもそういう事が行われていた可能性はあります。
世田ヶ谷の駒沢もその一候補だったのでしょうか、郊外狩猟場さがしの「おためし」なかんじがします。
梅屋敷の行幸はネットでは9回となっていますが、その詳しい日付までは探せませんでした。
この中では2回、梅見のために行幸がおこなわれています。それ以外だと、
明治元年10月13日に、明治天皇がはじめて東京へ行幸する時に東海道筋を通っていて、
その御小休場所として梅屋敷を利用しています。
明治元年12月8日には京都へいったん還幸するときにも、同じルートで蒲田を通っており、
明治2年3月27日にも東京再幸で東海道を通っているので、その往来をカウントしているのでしょう。
ただし、明治5年に新橋横浜間鉄道が開業してからは、神奈川方面への移動はもっぱらそれを利用するようになるため、梅屋敷に立ち寄る回数がぐっと減ります。(それこそ梅目当てで)
そして梅屋敷も「聖蹟蒲田梅屋敷公園」としてきちんと聖蹟を冠しています。
これ以外での多摩への行幸は明治16年4月16~20日の飯能行幸(杉並~田無~所沢~飯能)と、
明治13年6月16日~8月26日の三重及京都の長期巡幸(甲州街道ルートで八王子~山梨~長野~名古屋~三重~京都)で通過するのみですね。
飯能へは軍事演習の御覧なので遊山ではないです。
連光寺行幸が4回で、府中行幸が5回なのは、この上記の長期巡幸で通過した為1回多いのであって、
そもそも連光寺と府中の行幸はセットなのです。
このふたつを比べてどちらの方が多いかというのはまず、ナンセンスですね。
『連光聖蹟録』では代々連光寺の名主の富澤家が行在所になったとしていますが、
『明治天皇行幸年表』では府中行幸の行在所は田中三四郎邸に定めたとあるので、基本的に狩りのあとはあくまでコチラに戻って泊まります。
1泊の段階では、翌朝甲州街道から皇居へ戻るのに便利なように最初定めたのでしょうが、
やはり連光寺の山奥では宿泊するのに色々と不便すぎる点があったのでしょう。
たしかに、明治天皇の御泊はありませんでしたが、明治20年10月3日の英照皇太后の行啓では、富澤家を以て御泊所に充てられたとあり、多摩ニュータウン開発時代の本を見ても、富澤家を紹介する時は、そのことが書かれています。
富澤家はパルテノン多摩の公園内に移築して保存されてますし、
田中家も府中郷土の森に保存されていますので、どうぞ機会があったら見にいってみてください。
そうそう、『明治天皇行幸年表』の行幸で対鴎荘も出てきました。
明治6年10月20日 麹町区内幸町 三条実美邸 病を問い給ふ
明治6年12月19日 浅草区橋場町 三条実美邸(対鴎荘) 病気慰問
対鴎荘も、連光寺聖蹟事業の一環として隅田川の三条別邸を移築してきたものです。
老朽化して結局解体してしまったようですが、桜ヶ丘記念館行きのバスの途中に
「対鴎荘前」と名前だけのこっています。
もし現存していたら、アド天でもランクインしたでしょうね。惜しいことです。
歴史的な経緯とかろくな事が話せなかったので、こりゃまずいと思い、数年ぶりに関戸の図書館で
郷土資料をあさってきました。
借りてきた本は『連光聖蹟録』で発行が昭和3年です。聖蹟記念館の設立と同時期に出した物っぽい。
発行所の聖蹟奉頌連光会の番地がなぜか代々幡笹塚だったんで思わず、京王が書いたんじゃないよね?と疑ってしまいました。(本社があった)・・・それはともかく、これによると、
明治14年2月20日 明治天皇、八王子行幸の過程で神奈川県南多摩郡連光寺村に御兎狩
明治14年6月2日 明治天皇、府中行幸で同県同郡同村多摩川へ鮎御漁
明治15年2月15日~16日 明治天皇、同県同郡同村へ御兎狩
明治17年3月29日~30日 明治天皇、同県同郡同村へ御兎狩
明治18年9月22日 昭憲皇太后、同県同郡同村へ鮎御漁
明治20年8月21日 大正天皇(明宮殿下)同県同郡同村多摩川へ鮎御漁
明治20年10月3日 英照皇太后宮、同県同郡同村多摩川へ鮎御漁
明治20年10月17日 大正天皇(明宮殿下)同県同郡同村へ栗の実、菌御採収
明治21年10月17日 大正天皇(皇太子殿下)同県同郡同村へ地理御見学
明治25年7月1日 大正天皇(皇太子殿下)同県同郡多摩村字連光寺多摩川へ鮎御漁
明治26年10月8日 大正天皇(皇太子殿下)東京府南多摩郡多摩村字連光寺多摩川へ鮎御漁
明治33年10月7日 大正天皇(皇太子殿下)同府同郡同村字連光寺へ鳥類御猟
明治40年8月2日 大正天皇(皇太子殿下)同府同郡同村字連光寺多摩川へ鮎御漁
明治41年6月7日 大正天皇(皇太子殿下)同府同郡同村字連光寺多摩川へ鮎御漁
明治42年7月18日 大正天皇(皇太子殿下)同府同郡同村字連光寺多摩川へ鮎御漁
明治43年7月18日 泰宮親王殿下、同府同郡同村字連光寺多摩川へ鮎御漁
大正2年8月7日 今上陛下(東宮殿下)同府同郡同村字連光寺多摩川へ鮎御漁
で、明治天皇の行幸は4回(兎狩りは3回で鮎漁が1回)までだけど、
その後は皇族の方の行楽地となって、大正天皇なんて9回もきている。
その後、多摩御陵に葬られたことを思うと、多摩が大スッキだったのは
むしろ大正天皇の方だったのかも・・・ね。今上陛下というのは昭和天皇のことですね。
ところが『多摩と甲州道中』(新井勝紘・松本三善夫編/吉川弘文館)に行幸の回数だけでいえば、
そんなめずらしくもないし「比類のない」場所とするのは困難をともなう的な書かれ方をしていて、
「なんだとこのやろうっ」と。
たしかに多摩市はこれといった歴史に乏しい(さがすと14、5世紀まで遡らなきゃいけない)土地だから、これを逃さない手はないという後半の観光資源化の説明には同意できますが、その論理はなんとも乱暴じゃないかと反論してみたくなった。
『連光聖蹟録』に載っている、多摩村長の富澤政賢さんのお話(昭和3年2月19日東京中央放送局にて放送)によると、明治天皇はいつも国務に励まれ侍従が心配してもなかなか休まれることがなかった、
そんな中、明治6年8月の箱根宮への行幸と、八王子及び府中の兎狩りが治世間唯一のご静養遊山に類する行幸であった。ただし皇后陛下、皇太子殿下、内親王様方の御保養はいつも快くお許しになり、時には自らお促しになった。
そんな(公務ではなく)心遊ばせる場所として連光寺をお選びになった、ということが栄誉なわけであって、単純に数のみで「比類ない」と豪語した訳でもないようです。
実際に『明治天皇行幸年表』で数えてみると
公務以外で一番多い行き先は、吹上御苑のようです。これは千代田城内にあり、ようするに庭です。
次がおそらく植物御苑(新宿御苑)で明治13年~19年に回数が集中しています。
明治12年に宮内省管轄になったので、こちらもこのころ皇室の庭であった関係からでしょう。
公務で言うと戸山陸軍学校や士官学校の式典臨席・演習御覧にたびたび赴いていますし、
横須賀行幸・千葉習志野行幸もこれは軍艦に試乗したり、演習を御覧になったりして回数は多いです。
横浜行幸や浜離宮延遼館に行くことも多いですが、こちらは半分は国賓をもてなすためです。
公務(軍事関係)か私事か、分類に困るのが「競馬」です。
横浜行幸のもう半分の用が、この競馬天覧で、日本競馬会競馬場が横浜市にあり
これめあてにたびたび行幸しています。
ほかにも牛込区戸山町の戸山共同競馬会社や、芝区三田四国町の三田興農競馬会へも
たびたび競馬天覧で行幸しているので、これはもう趣味の分類でいいかもしれません。
さて、巡幸のような大規模な移動は一応公務に分類して、先の静養遊山の類の行幸を数えてみますと、
明治3年閏10月29日~11月2日 大宮行幸(氷川神社に参拝)浦和に2泊
明治4年12月2日 浜離宮 狩猟天覧
明治5年10月8日 王子飛鳥山行幸 紅葉天覧
明治6年3月6日 蒲田行幸 梅屋敷で御観梅
明治6年4月14日~17日 鎌倉行幸 鶴岡八幡参拝、江之島 漁猟天覧・八幡宮に2泊、藤沢に1泊
明治6年8月3日~31 箱根宮行幸 小田原海辺 鯛網天覧、塔ノ沢 鮎漁天覧、
芦ノ湖 湖上にて漁猟天覧・藤沢に2泊、小田原に2泊、箱根に23泊
明治9年5月4日 麻生区市兵衛町 静寛院宮邸 皇后宮御同列で能楽天覧
明治14年2月6日(世田谷区)駒沢行幸 兎狩天覧
明治14年2月10日 吹上 近衛隊練兵天覧並兎狩天覧
明治14年2月18日~21日 八王子行幸 兎狩天覧◎府中に1泊
明治14年4月26日 吹上 観桜会
明治14年5月9日 麻布区四ノ橋 島津忠義別邸 犬追物・相撲天覧
明治14年6月2日~3日 府中行幸 鮎漁天覧◎府中に1泊
明治14年11月16日 赤坂離宮 観菊会
明治15年2月9日 植物御苑 鴨猟を行はせらる
明治15年2月14日~17日 府中行幸 兎狩天覧◎府中に3泊
明治16年4月23日 小金井行幸 桜花天覧
明治16年4月24日 浜離宮 観桜会
明治17年3月19日 小向井行幸 梅屋敷で御観梅
明治17年3月28日~31日 府中行幸 兎狩天覧◎府中に3泊
明治17年11月17日 植物御苑 鴨猟天覧
明治17年12月26日 浜離宮 鴨猟天覧
さすがに遊山の類が箱根と連光寺だけって訳ではないですが、この時点でたしかに最多ではある。
滞在日数も、他と比べると長期です(同じ所に3泊)。
ネットでヒットした「幕末資料館」(http://hobby.life.coocan.jp/bkmts/meiten3.htm)によると
天皇の狩猟天覧は浜離宮や新宿御苑や赤坂仮皇居で行われいたが、皇居内で近衛を用いて兎狩りをする事に批判があり、郊外の狩猟地の開発が急務であったという。
明治4年の浜離宮の狩猟や明治14年の吹上の兎狩天覧がその一例でしょうか。
とくに吹上にはしょっちゅう出向いている(用事は記載されていない)ので、ここに書かれていない所でもそういう事が行われていた可能性はあります。
世田ヶ谷の駒沢もその一候補だったのでしょうか、郊外狩猟場さがしの「おためし」なかんじがします。
梅屋敷の行幸はネットでは9回となっていますが、その詳しい日付までは探せませんでした。
この中では2回、梅見のために行幸がおこなわれています。それ以外だと、
明治元年10月13日に、明治天皇がはじめて東京へ行幸する時に東海道筋を通っていて、
その御小休場所として梅屋敷を利用しています。
明治元年12月8日には京都へいったん還幸するときにも、同じルートで蒲田を通っており、
明治2年3月27日にも東京再幸で東海道を通っているので、その往来をカウントしているのでしょう。
ただし、明治5年に新橋横浜間鉄道が開業してからは、神奈川方面への移動はもっぱらそれを利用するようになるため、梅屋敷に立ち寄る回数がぐっと減ります。(それこそ梅目当てで)
そして梅屋敷も「聖蹟蒲田梅屋敷公園」としてきちんと聖蹟を冠しています。
これ以外での多摩への行幸は明治16年4月16~20日の飯能行幸(杉並~田無~所沢~飯能)と、
明治13年6月16日~8月26日の三重及京都の長期巡幸(甲州街道ルートで八王子~山梨~長野~名古屋~三重~京都)で通過するのみですね。
飯能へは軍事演習の御覧なので遊山ではないです。
連光寺行幸が4回で、府中行幸が5回なのは、この上記の長期巡幸で通過した為1回多いのであって、
そもそも連光寺と府中の行幸はセットなのです。
このふたつを比べてどちらの方が多いかというのはまず、ナンセンスですね。
『連光聖蹟録』では代々連光寺の名主の富澤家が行在所になったとしていますが、
『明治天皇行幸年表』では府中行幸の行在所は田中三四郎邸に定めたとあるので、基本的に狩りのあとはあくまでコチラに戻って泊まります。
1泊の段階では、翌朝甲州街道から皇居へ戻るのに便利なように最初定めたのでしょうが、
やはり連光寺の山奥では宿泊するのに色々と不便すぎる点があったのでしょう。
たしかに、明治天皇の御泊はありませんでしたが、明治20年10月3日の英照皇太后の行啓では、富澤家を以て御泊所に充てられたとあり、多摩ニュータウン開発時代の本を見ても、富澤家を紹介する時は、そのことが書かれています。
富澤家はパルテノン多摩の公園内に移築して保存されてますし、
田中家も府中郷土の森に保存されていますので、どうぞ機会があったら見にいってみてください。
そうそう、『明治天皇行幸年表』の行幸で対鴎荘も出てきました。
明治6年10月20日 麹町区内幸町 三条実美邸 病を問い給ふ
明治6年12月19日 浅草区橋場町 三条実美邸(対鴎荘) 病気慰問
対鴎荘も、連光寺聖蹟事業の一環として隅田川の三条別邸を移築してきたものです。
老朽化して結局解体してしまったようですが、桜ヶ丘記念館行きのバスの途中に
「対鴎荘前」と名前だけのこっています。
もし現存していたら、アド天でもランクインしたでしょうね。惜しいことです。
PR
前回のが長すぎて私自身閉口しています、ので要点はこっちにまとめよう。
東京鉄道が運賃値上げ失敗の責任を取り、牟田口社長が辞職し千家社長になるのが
明治42年3月の臨時株主総会で、このとき利光鶴松さんも取締役を退きます。
明治42年発行の「財界名士失敗談. 上巻」によると、牟田口さんは
「東鉄問題はサゾかし閉口したらん、橘中の仙と為て姑(しばら)く囲碁に隠るるが
寧ろ得策だらうと思ふ、仙乎俗可(か)、一年花飛ぶの時、目黒の高台に浩嘨(こうしょう)して
夢る所其れ将た何事ぞ。」とあるように退任後は目黒台の家に蟄居している印象です。
それが明治43年 9月21日の京王の創立総会では委員長をつとめ議長席に座ったと社史にあります。
そして役員の選出をするのですが「東京朝日新聞」によると重役は会長の指名によったとあります。
「●京王電軌創立総会」1910年(明治四十三年)9月22日
京王電気軌道株式会社は21日創立総会を開き収支計算及定款の承認あり
又重役報酬は一年四千円以上八千円以下とし当分最低額と為す事に決し
次で重役は会長の指名にて左の通り決定したり
△社長 川田鷹 △専務取締役 利光丈平 △取締役 豊原基臣、太田信光氏、井上平左衛門、
井倉和欽 △監査役 吉田幸作、岡 烈(※社史には濱太郎も取締役になったとある)
この会長とは、利光鶴松さんであろうと思われます。さらに彼は
明治43年10月に一時頓挫しかかった大規模水力発電の鬼怒川水力電気社長となります。
その発起人には西の資本家とならび東京鉄道の役員だった人たちの名前があります。
これは英国資本の導入に失敗しまくった結果、内資でまかなおうと東奔西走した結果です。
そこで明治44年初夏に利光さんは千代田瓦斯・鬼怒川水力電気・東京鉄道の重役をつれて
上方と名古屋へ遊び、西の株主との親交を深めるということもしています。
これは西の株主に大変好評だったようです。
明治44年 8月 1日、東京鉄道は市有となり、利光さんはその清算人となると同時に、
東京電気局の理事に転任してしまった井上敬次郎さんにかわり、同月で京成電車の会長になったり、
千代田瓦斯の社長になったりしています。
千代田瓦斯は福澤桃助さんらと設立した東京瓦斯の独占状態に対抗する為の会社だったらしく
明治42年発行の「財界名士失敗談. 上巻」に、その設立の経緯が当人によって語られています。
~時は明治三十九年の十二月であった、風邪の気味で臥褥(がじょく)して居ると、
菊池武徳君が野間五造君を連れ立って来て、何か大金儲けがなからうかと相談を受けた、
野間君とは今は交際して居るが、その時初めて会ったのである
其際僕は二君の問に対し、新に一の瓦斯会社を起さうと云ふ大略の目論見を話した。
是れより先き、門司の素封家たる大橋淡君より、門司市に瓦斯会社を設立するに就て相談された事が
ある、それで僕も出資者の一人となり、また東京瓦斯会社の一部の人とも語らひ、
兎に角設立の運びを完了した。
大橋君が門司市から下付を受けた特許書の中に、瓦斯事業は市自ら経営せず、亦他に対して
道路の使用を許可せずと云ふが如き、被特許者の利益たるべき条項がチャンと保証されてあった。
僕はそれを見て、東京瓦斯にも以上の特許条項があるかどうかを調べて見ると、東京瓦斯は、
初め市営の筈なりしを中途民間の事業に移したので、門司の如き特許命令を受けて居らない、
僕是に於て東京瓦斯と対抗すべき新瓦斯会社を起こすの余地ありと信じ、
如上菊池野間二君の来訪を幸ひとし、之が同意を促して愈よ創立運動に着手した。
今一つは其当時東京株式取引所の五十円株が七百円株もして居た、扨(さて)はと思って、
其の方面にも一つ新計画を立てて見た。
ソレや此れやで木挽町の待合山口を本陣とし、先づ瓦斯会社に関して対市会策を案じ、
市会の牛耳を執り居りし森久保作蔵君等と結託して願書を出したのが、
四十年の一月下旬、許可を受けたのが二月初旬、其間僅かに十日を出でぬやうに覚えて居る、
此の時の発起人は都合十一人、資本金二千万円、一株二百円、
而して之が即ち千代田瓦斯会社と云ふのであった。~
このとき一緒に中央取引所の設立も計画していたものの、株を割り振っていた政治家連が
郡制廃止問題でそれどころではなくなり、許可をすでに得ていた千代田瓦斯はともかく、
取引所のほうは願書もうやむやになって葬られてしまったという。
ちなみに福澤桃助氏は福澤諭吉の娘・ふささんの婿で、アメリカへ海外留学する資金をだすかわりに
婿養子になるよう誘われ、恋人だった貞奴(のちの川上音次郎の妻で、大女優となる芸子)と
わかれ留学。その留学中に川越の実の両親が亡くなり、失意の中で酒浸りになって居るところに
帰国命令が下り、北海道炭鉱鉄道へ赴任となるも、ふさのホームシックがもとで東京に呼び戻され、
友人と商店などもはじめてみるも、福澤諭吉に裏切られて外資の話がおじゃんになると、
怒りの余り意味もなく関西行きの汽車に飛び乗り車中で喀血、病院へ担ぎ込まれ肺結核とわかる。
見舞いに来た松永安左エ門氏にむかって「僕は養子縁組を解消するから、即刻それを伝えてくれ」
と病床からわめいたという。とにかくその場はなだめられたが、以来、桃助氏は福澤一派を信用せず
名古屋を拠点に電力会社を経営したり、松永さんと一緒に西鉄の前身を設立したり、
福澤姓でありながら、福澤諭吉に間接的な反抗をし続けた人で三井・福澤派ではないらしい。
ちなみに松永さんとは「安さん」「桃さん」と呼び合うような親友で、事業で協力したり競争したり
気質はちがえど電力界でのその経営の仕方は双子をみるようだったという。
それはともかく、前記「財界名士失敗談. 上巻」で
~中央取引所は以上の状態であった、千代田瓦斯の方は許可を受けてあるので、
創めれば何時でも始められたが、丁度その時は諸株暴落時代なりしが為め、
後ちの形勢を見定めるまで差控える事になり、今も其儘になって居る。~
とあるように、明治42年の段階では棚上げ状態だったようですが、
明治43年1月27日には創立総会を開いて資本金1000万円、委員長は安樂兼道とし、
明治43年5月14日に千代田瓦斯株式会社として正式に創立されます。
明治43年7月1日に東京市と報償契約を結び、
明治44年7月7日芝区より事業を開始、東京瓦斯と正面衝突します
しかし結局、ガス管を二重に道路に埋設するのは不経済という見地から、この事態を憂慮した
東京電灯の佐竹作太郎氏は東京府知事千家尊福氏、代議士尾崎邦輔氏とともに調停を斡旋し、
明治44年8月21日東京瓦斯の高松社長と千代田瓦斯の安樂社長の間で合併の仮契約が結ばれます
明治45年1月東京瓦斯は千代田瓦斯の全従業員を雇用し、権利義務一切の引き継ぎを完了します
この段階で安樂兼道氏がまだ社長だということは利光さんはこれ以降社長に就任したんでしょうか。
安樂さんは4回警視総監になったひとで、この時点で史上最多らしい。
市街鉄道の合併や運賃値上げの際に、警視総監である安樂さんにたびたび協力をお願いしていた
ようなので、利光さんとの関係は密だったんじゃないかな。
ちなみに、東京瓦斯会社側の役員は、古希を迎える渋沢栄一が会長の辞任表明したことをうけて
明治43年7月20日定款を変更し、会長制を廃止、社長、副社長を設置することとし、陣容は
取締役社長 高松豊吉
取締役副社長 久米良作
取締役 浅野総一郎 大橋新太郎 渡辺福三郎 福島甲子三 平松末吉
監査役 渡部朔 小林藤右衛門 伊藤幹一
というかんじでした。
この合併には市民の間でも賛否両論で、東鉄の市営化とならんで新聞紙面を騒がせています。
「株式年鑑」明治45年版にのる千代田瓦斯の役員は以下(明治44年下半期が対象となる)
「千代田瓦斯」 東京市芝区浜松町2丁目23番地
(東京瓦斯会社と合併の予定)
設立 明治43年5月14日
資本金 1000万円(内払込額 250万円)
株数 20万株(1株額面50円、内払込12円50銭)
役員 社長・利光鶴松、常務・岡烈、磯野保次、取締役・桂二郎、金子直吉、林謙吉郎、河合芳太郎、
岡本榎?監査役・神野金之助、平沼専蔵、三枝守富、中山佐市、木村省吾
関西の資本家(金子直吉、木村省吾)それと京浜の資本家(林謙吉郎、平沼専蔵)が名を連ねます。
これは鬼怒川水力で東奔西走して西側の資本家との繋がりができた結果かもしれませんね。
特に常務の岡烈さんは鈴木商店の支配人であり、
大正2年4月創立の大正生命でも専務をつとめていました。大正生命は鈴木商店の東京進出の鎮守府
であるとともに、京王電気軌道の創業当初からの筆頭株主だったといいます。
東京鉄道が運賃値上げ失敗の責任を取り、牟田口社長が辞職し千家社長になるのが
明治42年3月の臨時株主総会で、このとき利光鶴松さんも取締役を退きます。
明治42年発行の「財界名士失敗談. 上巻」によると、牟田口さんは
「東鉄問題はサゾかし閉口したらん、橘中の仙と為て姑(しばら)く囲碁に隠るるが
寧ろ得策だらうと思ふ、仙乎俗可(か)、一年花飛ぶの時、目黒の高台に浩嘨(こうしょう)して
夢る所其れ将た何事ぞ。」とあるように退任後は目黒台の家に蟄居している印象です。
それが明治43年 9月21日の京王の創立総会では委員長をつとめ議長席に座ったと社史にあります。
そして役員の選出をするのですが「東京朝日新聞」によると重役は会長の指名によったとあります。
「●京王電軌創立総会」1910年(明治四十三年)9月22日
京王電気軌道株式会社は21日創立総会を開き収支計算及定款の承認あり
又重役報酬は一年四千円以上八千円以下とし当分最低額と為す事に決し
次で重役は会長の指名にて左の通り決定したり
△社長 川田鷹 △専務取締役 利光丈平 △取締役 豊原基臣、太田信光氏、井上平左衛門、
井倉和欽 △監査役 吉田幸作、岡 烈(※社史には濱太郎も取締役になったとある)
この会長とは、利光鶴松さんであろうと思われます。さらに彼は
明治43年10月に一時頓挫しかかった大規模水力発電の鬼怒川水力電気社長となります。
その発起人には西の資本家とならび東京鉄道の役員だった人たちの名前があります。
これは英国資本の導入に失敗しまくった結果、内資でまかなおうと東奔西走した結果です。
そこで明治44年初夏に利光さんは千代田瓦斯・鬼怒川水力電気・東京鉄道の重役をつれて
上方と名古屋へ遊び、西の株主との親交を深めるということもしています。
これは西の株主に大変好評だったようです。
明治44年 8月 1日、東京鉄道は市有となり、利光さんはその清算人となると同時に、
東京電気局の理事に転任してしまった井上敬次郎さんにかわり、同月で京成電車の会長になったり、
千代田瓦斯の社長になったりしています。
千代田瓦斯は福澤桃助さんらと設立した東京瓦斯の独占状態に対抗する為の会社だったらしく
明治42年発行の「財界名士失敗談. 上巻」に、その設立の経緯が当人によって語られています。
~時は明治三十九年の十二月であった、風邪の気味で臥褥(がじょく)して居ると、
菊池武徳君が野間五造君を連れ立って来て、何か大金儲けがなからうかと相談を受けた、
野間君とは今は交際して居るが、その時初めて会ったのである
其際僕は二君の問に対し、新に一の瓦斯会社を起さうと云ふ大略の目論見を話した。
是れより先き、門司の素封家たる大橋淡君より、門司市に瓦斯会社を設立するに就て相談された事が
ある、それで僕も出資者の一人となり、また東京瓦斯会社の一部の人とも語らひ、
兎に角設立の運びを完了した。
大橋君が門司市から下付を受けた特許書の中に、瓦斯事業は市自ら経営せず、亦他に対して
道路の使用を許可せずと云ふが如き、被特許者の利益たるべき条項がチャンと保証されてあった。
僕はそれを見て、東京瓦斯にも以上の特許条項があるかどうかを調べて見ると、東京瓦斯は、
初め市営の筈なりしを中途民間の事業に移したので、門司の如き特許命令を受けて居らない、
僕是に於て東京瓦斯と対抗すべき新瓦斯会社を起こすの余地ありと信じ、
如上菊池野間二君の来訪を幸ひとし、之が同意を促して愈よ創立運動に着手した。
今一つは其当時東京株式取引所の五十円株が七百円株もして居た、扨(さて)はと思って、
其の方面にも一つ新計画を立てて見た。
ソレや此れやで木挽町の待合山口を本陣とし、先づ瓦斯会社に関して対市会策を案じ、
市会の牛耳を執り居りし森久保作蔵君等と結託して願書を出したのが、
四十年の一月下旬、許可を受けたのが二月初旬、其間僅かに十日を出でぬやうに覚えて居る、
此の時の発起人は都合十一人、資本金二千万円、一株二百円、
而して之が即ち千代田瓦斯会社と云ふのであった。~
このとき一緒に中央取引所の設立も計画していたものの、株を割り振っていた政治家連が
郡制廃止問題でそれどころではなくなり、許可をすでに得ていた千代田瓦斯はともかく、
取引所のほうは願書もうやむやになって葬られてしまったという。
ちなみに福澤桃助氏は福澤諭吉の娘・ふささんの婿で、アメリカへ海外留学する資金をだすかわりに
婿養子になるよう誘われ、恋人だった貞奴(のちの川上音次郎の妻で、大女優となる芸子)と
わかれ留学。その留学中に川越の実の両親が亡くなり、失意の中で酒浸りになって居るところに
帰国命令が下り、北海道炭鉱鉄道へ赴任となるも、ふさのホームシックがもとで東京に呼び戻され、
友人と商店などもはじめてみるも、福澤諭吉に裏切られて外資の話がおじゃんになると、
怒りの余り意味もなく関西行きの汽車に飛び乗り車中で喀血、病院へ担ぎ込まれ肺結核とわかる。
見舞いに来た松永安左エ門氏にむかって「僕は養子縁組を解消するから、即刻それを伝えてくれ」
と病床からわめいたという。とにかくその場はなだめられたが、以来、桃助氏は福澤一派を信用せず
名古屋を拠点に電力会社を経営したり、松永さんと一緒に西鉄の前身を設立したり、
福澤姓でありながら、福澤諭吉に間接的な反抗をし続けた人で三井・福澤派ではないらしい。
ちなみに松永さんとは「安さん」「桃さん」と呼び合うような親友で、事業で協力したり競争したり
気質はちがえど電力界でのその経営の仕方は双子をみるようだったという。
それはともかく、前記「財界名士失敗談. 上巻」で
~中央取引所は以上の状態であった、千代田瓦斯の方は許可を受けてあるので、
創めれば何時でも始められたが、丁度その時は諸株暴落時代なりしが為め、
後ちの形勢を見定めるまで差控える事になり、今も其儘になって居る。~
とあるように、明治42年の段階では棚上げ状態だったようですが、
明治43年1月27日には創立総会を開いて資本金1000万円、委員長は安樂兼道とし、
明治43年5月14日に千代田瓦斯株式会社として正式に創立されます。
明治43年7月1日に東京市と報償契約を結び、
明治44年7月7日芝区より事業を開始、東京瓦斯と正面衝突します
しかし結局、ガス管を二重に道路に埋設するのは不経済という見地から、この事態を憂慮した
東京電灯の佐竹作太郎氏は東京府知事千家尊福氏、代議士尾崎邦輔氏とともに調停を斡旋し、
明治44年8月21日東京瓦斯の高松社長と千代田瓦斯の安樂社長の間で合併の仮契約が結ばれます
明治45年1月東京瓦斯は千代田瓦斯の全従業員を雇用し、権利義務一切の引き継ぎを完了します
この段階で安樂兼道氏がまだ社長だということは利光さんはこれ以降社長に就任したんでしょうか。
安樂さんは4回警視総監になったひとで、この時点で史上最多らしい。
市街鉄道の合併や運賃値上げの際に、警視総監である安樂さんにたびたび協力をお願いしていた
ようなので、利光さんとの関係は密だったんじゃないかな。
ちなみに、東京瓦斯会社側の役員は、古希を迎える渋沢栄一が会長の辞任表明したことをうけて
明治43年7月20日定款を変更し、会長制を廃止、社長、副社長を設置することとし、陣容は
取締役社長 高松豊吉
取締役副社長 久米良作
取締役 浅野総一郎 大橋新太郎 渡辺福三郎 福島甲子三 平松末吉
監査役 渡部朔 小林藤右衛門 伊藤幹一
というかんじでした。
この合併には市民の間でも賛否両論で、東鉄の市営化とならんで新聞紙面を騒がせています。
「株式年鑑」明治45年版にのる千代田瓦斯の役員は以下(明治44年下半期が対象となる)
「千代田瓦斯」 東京市芝区浜松町2丁目23番地
(東京瓦斯会社と合併の予定)
設立 明治43年5月14日
資本金 1000万円(内払込額 250万円)
株数 20万株(1株額面50円、内払込12円50銭)
役員 社長・利光鶴松、常務・岡烈、磯野保次、取締役・桂二郎、金子直吉、林謙吉郎、河合芳太郎、
岡本榎?監査役・神野金之助、平沼専蔵、三枝守富、中山佐市、木村省吾
関西の資本家(金子直吉、木村省吾)それと京浜の資本家(林謙吉郎、平沼専蔵)が名を連ねます。
これは鬼怒川水力で東奔西走して西側の資本家との繋がりができた結果かもしれませんね。
特に常務の岡烈さんは鈴木商店の支配人であり、
大正2年4月創立の大正生命でも専務をつとめていました。大正生命は鈴木商店の東京進出の鎮守府
であるとともに、京王電気軌道の創業当初からの筆頭株主だったといいます。
前回は京王の発起人が玉川電気鉄道系の人だったというとこで終わりました。
京王の前史を再掲します。
明治38年12月12日 日本電気鉄道として蒲田-調布-府中-立川と新宿-府中の支線の軌道敷設を出願
明治39年 8月18日 武蔵電気軌道と改称、立川-八王子と府中-国分寺の路線を追加出願
明治40年 6月25日 新宿-八王子の本線と、府中-国分寺の支線、立川-立川停車場の特許を得る
明治40年 7月4日付けで先行出願した電気事業の許可を得る
明治43年 4月12日 京王電気軌道に改称
明治43年 9月21日 資本金125万円で設立
「京王電気軌道三十年史」によると、
この明治43年9月21日に京橋区東京地学協会で創立総会を開き、
本店を東京府豊多摩郡代々幡村大字代々木字山谷二九一番地に置いたとあります。
そしてこの日に決まった重役陣が以下の通り。
取締役会長 川田 鷹氏
専務取締役 利光丈平氏
取締役 豊原基臣氏
同 太田信光氏
同 井上平左衛門
同 井倉和欽氏
同 濱 太郎氏
監査役 吉田幸作氏
同 岡 烈氏
どうも武蔵電気軌道の発起人には居なかった人ばかりです。
この人らは、誰かというと旧東京鉄道の役員、および鬼怒川水力電気の発起人なのです。
鬼怒電発起人一覧とのつきあわせについては前の記事をご覧ください。
なんでこうなったのかといえば、東京市内で鼎立していた電気鉄道三社が合併し、
さらには市有化されたことと、この頃、鬼怒電が創立されたこと、
それに千代田瓦斯が東京瓦斯に合併されたことなどが関係あるのだと思います。
そしてそのどれにも関わりがあり、労を取ったのであろう人が小田急電鉄創始者の利光鶴松さんです。
鬼怒電についてはそれなりに上記の記事にまとめたので、ここでは肝心の東京市内電気鉄道と
その集約の流れをまとめてみます。当然のように長いのでとばしてもいいです。
=============================================
明治22年 4月27日 大倉喜八郎ほか5名が「電気鉄道」を出願(8月16日却下)
明治22年 6月 3日 立川勇次郎ほか6名が「東京電道1」を出願(8月16日却下)
明治23年 8月25日 軌道条例公布
明治23年 8月25日 軌道条例に関する出願手続を定める(内務省訓令、訓第662号)
~東京電灯の設立が許可されたのは明治16年2月15日(試験点灯の許可は1月27日付)で、
電気の供給を始めるのが明治20年頃、しかも専ら灯りに使われるだけで、動力とされるのは
明治23年11月の浅草十二階・凌雲閣のエレベーターが最初だったという。
電車などはまだまだ未知数で、法整備もされて無かっためそれ以前の出願は即却下されていた模様。
なので軌道条例公布後、出願して実現にむかった物で早かったのは雨宮敬次郎さんの派閥でした。
なお、このへんの計画会社は名前の重複がはげしいので番号つけてみました。~
(前の会社が名前を捨てたら、すぐ拾う/笑)
明治26年10月13日 雨宮敬次郎ほか41名により「東京電気鉄道1」の敷設特許請願書が提出される
(発起人には三浦泰輔や岩田作兵衛などの甲武鉄道派、甲州財閥の小野金六もいた)
明治26年11月 新規の市街電鉄の発起に刺激されて、「東京馬車鉄道」でも動力の変更を申請
(公称資本金50万円)
明治26年11月26日 藤岡市助や大倉喜八郎ら5名による「東京電車鉄道1」が設立願書を提出
(公称資本金40万円)
明治26年11月29日 立川勇次郎ら9名による「東京電道鉄道2」が設立願書を提出
(公称資本金40万円)
~乱立、というかなんというか、みんな時期が近すぎで盛り上がってんだなーと感じます。
甲武鉄道が市街線の延伸を目論み測量を終えるのが明治25年3月23日、
鉄道会議が市街線の許可を出すのが明治26年2月12日、新宿飯田町間の建設免許が同年3月1日、
3月末には用地買収をおえ、7月5日には飯田町側から工事を開始しているので、
中央線が燃料になっている部分もあるのかもしれませんね。~
明治28年 4月18日 雨宮の「東京電気鉄道1」藤岡の「東京電車鉄道1」立川の「東京電道鉄道2」が
帝国ホテルにおいて三派合同の会議を開き各派総代人連署をその筋に追願
雨宮を発起人総代として改めて「東京電気鉄道2」設立を出願する
(公称資本金100万円)
明治28年 4月27日 草刈矍翁ほか数名が「東京中央電気鉄道1」を出願するも、
8月9日に「東京電気鉄道2」に合流
明治28年 6月 2日 「東京電気鉄道2」は発起人規約を定め事務所を築地館に置く
明治28年 6月19日 藤山雷太、渋沢栄一らが「東京電車鉄道2」を出願(公称資本金380万)
(発起賛同者には福澤捨次郎、中上川彦次郎、益田孝、朝吹英二などがいて、いわゆる三井・福澤派)
明治28年 7月 雨宮が主唱して紅葉館で「東京電気鉄道2」は発起人総会を開く
(8月に中央電気が合流し資本金は150万円)
明治28年 8月 千葉胤昌が「東京府内電気鉄道」を出願
明治28年 9月 2日 関 直彦ほか4名が「東京中央電気鉄道2」を、17日「東京目黒電気鉄道」を出願
明治28年 9月 5日 松本錬蔵が「東京青山電気鉄道」を、7日「江東電気鉄道」をそれぞれ出願
明治28年12月15日 「東京電気鉄道2」の事務所を築地館から京橋区山城町三番地に移し
有田秀造を事務主任にする
明治29年 3月 2日 地主の協賛を集めて野中万助ほか49名が「東京自動鉄道」を出願
(自由党・星亨・地主派)
明治29年 4月 2日 森岡昌純ほかが「川崎電気鉄道」を出願(公称資本金55万円)
明治29年10月29日 内藤義雄が「王子電気鉄道」を出願
明治29年11月 5日 加藤鉄三郎ほか5名が「永代橋電気鉄道」を、村井寛吾が「城南電気鉄道」を出願
明治29年12月26日 福島松之助が「浅草電気鉄道」を出願
明治30年 2月25日 深津忠雄が「京中電気鉄道」を出願
明治30年 2月22日 「東京電気鉄道2」は帝国ホテルで発起人総会を開く
明治30年 7月20日 「東京府内電気鉄道」「東京中央電気鉄道2」「東京目黒電気鉄道」
「東京青山電気鉄道」「江東電気鉄道」「王子電気鉄道」「永代橋電気鉄道」
「城南電気鉄道」「浅草電気鉄道」「京中電気鉄道」が6月中に
雨宮の「東京電気鉄道2」に合流し追願の手続を完了
(公称資本金は500万円となり三井派の380万円を凌ぐ)
明治30年 8月16日 「川崎電気鉄道」が郡部のみ出願路線を許可される
~ここで、色分けの説明をしますと雨宮氏の甲武鉄道派閥と、最初期に出願していた大倉・立川組の
第一次「東京電気鉄道2」合同派閥がオレンジ色です。青紫がそれ以降に合流する第二次合同組。
青は「東京馬車鉄道」をもととする「東京電車鉄道3」
緑は福澤山脈(慶応閥)たる福澤家+三井組(捨次郎は諭吉の息子で中上川は諭吉の甥っ子)、
赤紫は地主+野中万助+自由党で利光さんがここ贔屓、
赤は鼎立三電のなかでも弱小な元・川崎電気組=「東京電気鉄道3」~
明治30年10月 樺山内相が雨宮派と三井派に市内を二分する形で許可を内定する
(「川崎電気鉄道」も信濃町までの延伸の許可を内定)
明治30年11月29日 利光鶴松が東京市会において樺山内相の許可を取り消すよう建議案を提出
明治31年 6月 肥塚龍東京府知事が市会にはからず「東京馬車鉄道」の運賃値上げを許可し
これに怒こった利光が府知事への弾劾決議を提案、市会が満場一致で賛成するも
運賃値上げは決行される
~第二次松方内閣(松隈内閣)で内務大臣だった樺山資紀は市内の交通機関を政党操縦する目的で
東京市内を二分して山手方面を雨宮側に、下町方面を三井側に下付する方針を打ち出します。
しかも市の監督権を認めず、市に対する公納金の規定もない市側に不利なものだったので、
「東京自動鉄道」側だった利光さんはこれを阻止しようと建議案を提出、当然市会も一致して賛成し
15区から一名ずつ委員をだして総理大臣と内務大臣に肉迫、市会の意見は容れられてとりあえず
この許可は中止となりました。
利光さんが東京市会議員になったのは、
当時東京市会および東京府が改進党系の牙城になってる所へ切り込む為でした。
明治14年の政変で失脚した大隈さんと慶応閥らがはじめたインテリな改進党に比べ、
地方農民出身の多い自由党系は事件を起こしたり壮士を動員したりと暴力的なイメージが強く
都市部の有権者には人気がなかったのです。
そこで自由党出身の利光さんは改進党ににぎられていた東京市政を、
なんとか自由党の手に届くものにしたいとの意志を強くしていました。
遅々として進まぬ市内交通問題や近代水道化問題や港湾整備問題は、そのいい機会だったよう。
星亨の「自由党も地方をむいてかつての武勇伝を自慢するのではだめだ、東京の実業家の信頼を
勝ち取らねば今後はうまくいかない」との考えに共鳴して利光さんは東京の実業家に近づき、その力になって信用を得、またその主義の主唱者たる星亨自身にも参加して貰う為市会進出の足場を作ります。
その動きを年表にするとこんなかんじ。
明治29年 2月 利光鶴松、深川区から立候補し無競争で東京市会議員に当選
明治31年 3月 利光鶴松、東京府第五区(本所・深川区)より衆議院議員に当選
明治31年 6月 憲政党創立、利光鶴松は幹事となる
明治32年 6月 星亨、麹町区から立候補し東京市会議員になる
明治34年 1月 星亨、東京市会議長となる
明治34年 6月21日 星亨、東京市会で兇刃に倒れる
星亨氏が「東京市街鉄道」の話をまとめたのは、そんな明治32年の市会議員になったころでした~
明治32年 1月13日 「川崎電気鉄道」に市内線(信濃町~広尾)が特許下付
明治32年 7月18日 星亨の周旋で藤山雷太らの「東京電車鉄道2」と野中万助らの「東京自動鉄道」が
雨宮の「東京電気鉄道2」に合流
社名を「東京市街鉄道」とし、19日帝国ホテルで契約書を交わす
(公称資本金1500万円、各派500万円ずつ)
明治32年 8月14日 「東京市街鉄道」の出願をし直す
~利光さんの作った足場に乗っかって星亨氏は順調に市会で勢力をのばし、その政治力でもって
膠着していた市内電車問題も一応の形にまとまります。
星氏は小松原英太郎内務次官をたずねて三派合同を提案しその賛意を得ると、西郷内相にもあたり、
西郷内相から山縣首相に話を通して貰って政治的な地固めをすませ、
当事者の雨宮さん説得には利光さん、益田・中上川の三井派には星さんがあたり、
野中万助にはあらかじめ話は通してあったので、合議の末各派から五人の委員をだすことにし、
浜町の常盤屋で会談ののち各派平等同権とした上で合同契約書をつくり署名調印を成立させました~
明治32年10月 8日 「東京市街鉄道」発起人総会を開き、市参事会決議への意見をまとめ、
9日市長の召還で三派代表が出頭、
公納金問題で、8朱と法定積立準備金を除く10分の3の利益を申し出る
明治33年 5月 「川崎電気鉄道」が岡田治衛武による「東京電気鉄道3」に改称
(公称資本金80万円、近藤廉平の日本郵船・三菱系)
明治33年 6月 9日 「東京市街鉄道」に特許下付、
「東京馬車鉄道」には動力変更の特許、命令書を下付しようとしたが、
会社側が命令書の条項に不服ありと受領を拒否
明治33年10月 2日 「東京馬車鉄道」が動力変更の認可を受領、30日に「東京電車鉄道3」と改称
明治35年 4月18日 「東京市街鉄道」が創立総会を開く
~内務省と東京市会を通過した「東京市街鉄道」の申請書は東京市参事会の手にうつります。
市参事会は市政の執行決定機関で、当時の委員は渋沢栄一、田口卯吉、吉野世経、鳩山和夫、星亨ら
著名人十二名と、松田秀雄市長、朝倉外茂鉄助役、浦田治平助役の三名の合計15名。
うち渋沢、田口、鳩山、星が民有論、4名が市有論、7名が中立で、新聞が煽動的に書き立てたため
区会議員も市有民有の区にわかれて市、府、内務大臣、首相宛に建白書を提出の大論争がおきます。
特に東京瓦斯会社の大橋新太郎専務は、出願時に「東京市街鉄道」が架空単線式だったので、
ガス管の腐食に繋がると懸念し、内相時代市有論だった板垣退助にもはたらきかけて市有演説をさせ、
事を大きくしました。(内務省と市会の審査の点で、単線式は複線式に訂正させられてる)
また枢密顧問官の伊東己代治が板垣氏に「星亨は閣下が内相時代に市有の省議を決定したのに、
一言の挨拶もなく民間に経営させようとしているのは無礼ではないですか」と焚きつけたため、
純情な板垣さんの心に火が付いて、民有反対の大旗を振る格好になったともいいます。
利光さんはこの二人への報復手段を考え、大橋専務には瓦斯会社からのガス管埋設の願書を握り潰し
一切許可しない根回しをし、伊東男爵には永田町の邸に道路が貫通する市区改正案をたてて新聞に
書かせ、驚いた伊東さんが利光さんに会見を申込んできたので、改正案をひっこめるかわりに
板垣さんの市有運動を止めさせるよう条件をだします。
しかし火が付いた板垣さんを収めるのは容易ではなかったようです。
とにかく市参事会の結論は民有に決し、内務省に仕事がうつってからは西郷内相が閣議にはかり
即日承認され、今度は東京府を経て特許状は下付されました。
星氏はじめ発起人一同は築地新喜楽に集まり特許状を床の間に飾ってこれを祝ったといいます。
しかし、創立委員長すなわち社長を誰にするかで一波乱ありました。
三井派は資金調達が容易で世間から人気があり、地主派の野中派は雨宮さんが嫌いだったので、
創立委員中では雨宮反対派が多数でした。
けれどもこの中で直接、鉄道経営のノウハウを知っているのは雨宮さんなので、
星さんでさえ初めは三井派だったのに対し、利光さんは「ただの会社ならともかく三井家の若旦那を
床の間の置物にするのは公卿を大将として戦場に臨むようなもので、途中できっと後悔するから、
人情に於いても長く交通機関問題に携わってきた雨宮氏にするべきだ」と説得し、これに納得した
星さんが創立委員に向かって雨宮氏を委員長に推すことを明言して雨宮さんに決したということです。
電車を通すための道路拡充で市区改正を速成するため、星・利光さんは会社と東京市の連絡役と
なっていましたが、そこへ日清戦争の恐慌が来襲し、一時は10円以上のプレミアム付だった会社の株
は50銭でも買い手のつかない状況となり、義和団事件などで世情は不安でした。そんなときに、
星亨が暗殺されて「東京市街鉄道」は有力な後援者も失います。
利光さん自身もこれで弱っていたのか、外国人からの融資の話にのっかり、雨宮さんほか一名が
「そんな外人には取り合わぬ方がいい」と反対するのを説得し、保証人を東海銀行と露清銀行ときめ
創立委員一同が横浜に向かうと露清銀行のほうが「そんな話はきいていない、詐欺師の類でしょう」
といわれ「このときほど恥をかいたことはない」というほど面目を失っています。
結局お金は、雨宮さんと親しい安田善次郎さんにお願いし「次の3ヶ条を守るのであれば」という
条件で出資してもらいます。
「1安田は一株ももたない」「2株式の8割を融通する」「3電車賃は5銭均一にする」
このことを発表した所、会社の信用も回復して株の申込みは忽ち進捗しますが、のちに雨宮さんは
「電車賃三銭均一」を実施し、この約束を破ります。
ともかく会社は資本金を1500万円から300万円に縮小し、第一回払込は東海銀行と安田銀行に
引き受けてもらい、特許路線を5期に分けて起工することになりました。
こうして「東京市街鉄道」は発足しますが、
じつはさらに、元馬車鉄道の「東京電車鉄道3」とも合同しようという動きがおこります。
「東京電車鉄道3」は市の中央を通る路線で採算性が高いものの、市街鉄道の出現で延伸が難しく
電化もしなければならない情勢で、成長が行き詰まっていました。一方
「東京市街鉄道」は大規模な免許線路をもちつつ資本が集まらず着工もあやうい状況にあり、
ここで両者の弱点が一致し、合併の話がもちあがるのです。~
明治36年 3月 東京府知事千家尊福と東京商業会議所会頭渋沢栄一の仲介で
「東京市街鉄道」と「東京電車鉄道3」の合併の議起こる
明治36年 7月 「東京市街鉄道」と「東京電車鉄道3」の合併仮契約調印の臨時株主総会が開かれるも
雨宮が反対を唱える。雨宮派の退場後、合併派のみで合併承認がなされ、
「東京電車鉄道3」社長・牟田口元学と「東京市街鉄道」専務取締役・藤山雷太の
連名で合併願を提出、これに対し雨宮派は合併決議無効の仮処分を申請し、
芝区裁判所がこれを受理し、合併派の仮処分解除の申請を却下
明治36年 8月 合併派は臨時総会を開き雨宮の取締役を解職するほかなしと決め、
会長を吉田幸作とし、監査役の根津嘉一郎を議長として議事をひらくと、
雨宮派は会長である雨宮を議長としないのは不法であると多数の壮士をつかって騒ぎ、
臨場警察官が治安に害ありとして解散を命じる
~一時は合併調印に賛成だった雨宮さんですが、なぜ急に過激な反対運動に出たかといえば、
東京電車と市街鉄道の幹部の間で合併後の新会社の役員に雨宮さんをいれない秘密条約が
むすばれていたことを知ったからだと云います。
合併事件は春に始まり秋になっても紛糾し続け、収束を見せなかったので民営論を強力に薦めた立場の利光さんは断然決意し、合併を捨てて独立経営の方針を打ち出します。井上敬次郎の賛成を得て、
京橋区三十間堀の料亭に創立委員を招き提議すると、合併派は利光さんに事態の収拾を一任し、
利光さんが雨宮さんにあたったところ、雨宮さんも困ったいたので「君に一任する」との答えを得て、
重役の陣容を刷新し、取締役会長を雨宮さんから高島嘉右衛門にかえ、専務を吉田幸作、
理事を立川勇次郎、運輸監督を井上敬次郎、取締役を雨宮・根津という形におさめます。
利光さんは創業以来、表に立たず顧問の地位にとどまります。
そんな、合併問題で大もめの間に、馬車鉄道の電化が進み、市街鉄道も開業しはじめるのです。~
明治36年 8月22日 新橋ー品川間(元「品川馬車鉄道」の区間)で東京電車鉄道が走り始める
明治36年 9月15日 数寄屋橋ー神田橋間で「東京市街鉄道」が走り始める
明治36年11月 「東京市街鉄道」は合併をあきらめ、馬越恭平の仲裁で重役は総辞職し、
あらたに高島嘉右衛門が取締役会長に就任、
藤山雷太は専務取締役を辞し、雨宮敬次郎も取締役に退く
明治38年 3月 高島嘉右衛門が取締役会長を辞任、再び雨宮敬次郎が会長に返り咲く
~いちど会長職を退いた雨宮さんがふたたび返り咲いたのは、満州や清国に漫遊するため
「東京市街鉄道会長の肩書きをもっていきたいから」との希望で、高島さんも病気中だったため
この提案を受け入れ、重役連に相談して異論もでなかったので実現したようです。
このころ利光さん自身も取締役になりました。~
明治39年 3月 雨宮敬次郎、株主の運賃値上げ派多数により立川勇次郎と共に役員を辞し社外へ去る
明治39年 3月11日と15日に日比谷公園で社会主義者主宰の運賃値上げ反対の市民大会がおこる
明治39年 6月11日 渋沢栄一と馬越恭平の裁定で、三社合併の条件がまとまり合併仮契約書締結
明治39年 8月 三社合併の認可が下りる
明治39年 9月 5日 三社合併の条件である四銭均一に反対するデモ隊が電車十数台を焼き打ちにし
電車の営業が数日止まる
明治39年 9月11日 東京三鉄道が合併し「東京鉄道」となる
~ところで「東京市街鉄道」は市内三銭均一の料金制度をとっていました。
これは雨宮さんの公共交通は市民の利益のためにとの主義によるものですが、
立案したのは藤岡市助電気技師でした。馬車鉄道の運賃収入から計算して、これでも十分採算は
とれるとの見通しではじめたものでしたが、採算性の高い馬車鉄道の路線とはちがい、
市街鉄道の電車路線は経費が予定していた3倍はかかり、運賃値上げをするほかなくなりました。
藤岡技師は責任を取って免職になったといいます。
市街鉄道発端のダンピングで開業していた市内電車三社は疲弊しており、三社共同で五銭均一に
値上げの申請をだすことにします。三銭均一を打ち出した雨宮さんはこの大勢をみて辞職しました。
運賃値上げは当然市民の反発が予想されるので、新聞各社に説明をし、東京市会には星亨の地盤を
受け継いだ森久保作蔵に働きかけてもらい、原内相には元田肇、岡崎邦輔から事情を説明して、
財界を牛耳っている井上馨侯爵には渋沢栄一と近藤廉平から了解をとってもらいました。
さらに千家尊福東京府知事、安樂兼道警視総監にも事情を了解してもらっての発表でしたが、
案の定市民から値上げ反対の声が上がり運動は拡大、日露戦争で鉄道は国有が望ましいという
意識も高まって私鉄と国とが対峙していた時期だったので市有民有論が再熱、
この上市民が騒いでは大変だと政府は値上げ申請を却下、
株価も暴落して窮地に陥った三社は合同の道を歩みます。
9月11日の創立総会で会社解散にともない、新会社の役員が選出されました。
社長は馬車鉄道時代から社長であった牟田口元学氏、
常務は「東京電気鉄道」の専務だった川田 鷹氏と「東京市街鉄道」の取締役の井上敬次郎氏、
それに安藤保太郎氏が加わります。取締役には「東京電車鉄道」の中野武営氏と利光さん、それに
「東京電車鉄道」で監査役、「東京市街鉄道」で取締役だった根津さんもなります。
新会社は四銭均一制を打ち出したので市民がまた騒ぎだし、電車焼き打ち事件も発生、
市営化論の声がふたたび高くなります。~
明治41年 6月 市と交渉して市営化を申請するも大蔵省によって不許可になる
明治41年12月 「東京鉄道」の運賃改定案(五銭均一)が却下される
明治42年 3月 値上げ失敗の責任をとり臨時株主総会で取締役と監査役全員が辞職を申し出る
千家尊福が社長に、常務3人と根津・小野は重役に残り、5人が新任となる
明治44年 8月 1日 「東京鉄道」市有化、東京市電気局が開設され東京市電となる
~明治40年末頃、日露戦争後の一時的な好況が去ると、東鉄株は再び低落します。
市街鉄道市有論者の中島行孝市議は尾崎行雄市長と森久保作蔵市参事会に働きかけて、
この株価低迷期にこそ市が買収すべきであると進言します。
会社側も相当の価格であるから市有賛成の意見で、そこから正式に買収交渉がはじまるのですが
仮契約もすみ株主総会の承認も得て市会も通過、市と会社は連署で内務・大蔵両省に認可の申請を
行いました。しかし公債の価格に悪影響を及ぼすおそれがあるからとの理由で貴族院から反対にあい
日露戦争で鉄道公債も暴落し普通公債も前例のない低落をし、公債価格の維持に自信のない大蔵省も
市債の発行に反対の姿勢だったため、内務省の認可はあったのに大蔵省に不許可にされます。
桂内閣となり経済政策に尽力することが表明された為、株価は暴騰しインフレの様相となったので
四銭均一ではとても立ちゆかないと、会社はふたたび運賃値上げを画策します。
平田内相には渋沢栄一と近藤廉平が赴き、鉄道院総裁後藤新平には杉山茂丸氏と牟田口社長が陳情、大浦農相には松本剛吉氏に連れられ利光さんが陳情しに向かいます。
桂首相には側近を通じて陳情し、警視庁、東京府、東京市会にも根回ししてその了解を得ます。
しかし後藤総裁には東鉄が年八分の配当を続けている事を指摘され、配当を年五分にして
再申請するとこれも「公債証書と同じで諦められぬこともない」と蹴られたため、
株主総会を通して年四分の配当にして申請しなおしました。
当局は判断を保留しつつけ、市民は反対運動をおこし、結局値上げ申請は却下されます。
この間貴族院の妨害があったのは、このころ原敬内相のもと郡制廃止法案が党命を左右するほどの
大問題となり、衆議院を通過したあと貴族院で否決されるもその賛否が僅差だったため
山縣有朋さんをはじめとする官僚閥はショックを受けます。
その原内相のために利光さんが多額の献金をしていたことで、山縣閥の恨みをかっていた事がわかり、
利光さんは運賃値上げの失敗をとって役員が総辞職した時に取締役を退きます。
これまで市会を強引に操縦してきた為、内外に敵も多くなってきていたことも理由でした。
新役員には市民にも人気の人でなくてはと出雲禰宜の家柄の千家尊福さんを引き出すことにしました。
これは、東鉄市営化が西園寺内閣で却下されたことをうけて
尾崎市長が市参事会と共に辞表を提出したとき、市参事会は全員再選したにもかかわらず
尾崎市長の辞表だけが受理されたのが不公平だと反対して、後任に千家さんが内定していたのを
尾崎市長に返り咲かせた経緯があり、その罪滅ぼしの面もあったという。
市内交通の独占で反感を買っていた牟田口・利光勢がしりぞくと、
弊害がとりのぞかれた東鉄の市営化は時間の問題となりました~
=============================================
最後に「東京鉄道」の役員をを退いた利光さんのその後の経歴が以下。
市内交通の弊害を見続けてきた結果、小田急の元となる「東京高速鉄道」のような
地下鉄にいち早く出願したのも故なるかなという気がします。
明治43年10月 鬼怒川水力電気創立、社長となる
明治44年初夏 千代田瓦斯、鬼怒川水力電気、東京鉄道の重役をつれて上方と名古屋へ遊び、
西の株主との懇親を深める(岩下清周の案内で箕面、宝塚へも行った)
明治44年 8月 東京鉄道が市有化、清算人会長となる、京成電車の会長、千代田瓦斯の社長となる
京王の前史を再掲します。
明治38年12月12日 日本電気鉄道として蒲田-調布-府中-立川と新宿-府中の支線の軌道敷設を出願
明治39年 8月18日 武蔵電気軌道と改称、立川-八王子と府中-国分寺の路線を追加出願
明治40年 6月25日 新宿-八王子の本線と、府中-国分寺の支線、立川-立川停車場の特許を得る
明治40年 7月4日付けで先行出願した電気事業の許可を得る
明治43年 4月12日 京王電気軌道に改称
明治43年 9月21日 資本金125万円で設立
「京王電気軌道三十年史」によると、
この明治43年9月21日に京橋区東京地学協会で創立総会を開き、
本店を東京府豊多摩郡代々幡村大字代々木字山谷二九一番地に置いたとあります。
そしてこの日に決まった重役陣が以下の通り。
取締役会長 川田 鷹氏
専務取締役 利光丈平氏
取締役 豊原基臣氏
同 太田信光氏
同 井上平左衛門
同 井倉和欽氏
同 濱 太郎氏
監査役 吉田幸作氏
同 岡 烈氏
どうも武蔵電気軌道の発起人には居なかった人ばかりです。
この人らは、誰かというと旧東京鉄道の役員、および鬼怒川水力電気の発起人なのです。
鬼怒電発起人一覧とのつきあわせについては前の記事をご覧ください。
なんでこうなったのかといえば、東京市内で鼎立していた電気鉄道三社が合併し、
さらには市有化されたことと、この頃、鬼怒電が創立されたこと、
それに千代田瓦斯が東京瓦斯に合併されたことなどが関係あるのだと思います。
そしてそのどれにも関わりがあり、労を取ったのであろう人が小田急電鉄創始者の利光鶴松さんです。
鬼怒電についてはそれなりに上記の記事にまとめたので、ここでは肝心の東京市内電気鉄道と
その集約の流れをまとめてみます。当然のように長いのでとばしてもいいです。
=============================================
明治22年 4月27日 大倉喜八郎ほか5名が「電気鉄道」を出願(8月16日却下)
明治22年 6月 3日 立川勇次郎ほか6名が「東京電道1」を出願(8月16日却下)
明治23年 8月25日 軌道条例公布
明治23年 8月25日 軌道条例に関する出願手続を定める(内務省訓令、訓第662号)
~東京電灯の設立が許可されたのは明治16年2月15日(試験点灯の許可は1月27日付)で、
電気の供給を始めるのが明治20年頃、しかも専ら灯りに使われるだけで、動力とされるのは
明治23年11月の浅草十二階・凌雲閣のエレベーターが最初だったという。
電車などはまだまだ未知数で、法整備もされて無かっためそれ以前の出願は即却下されていた模様。
なので軌道条例公布後、出願して実現にむかった物で早かったのは雨宮敬次郎さんの派閥でした。
なお、このへんの計画会社は名前の重複がはげしいので番号つけてみました。~
(前の会社が名前を捨てたら、すぐ拾う/笑)
明治26年10月13日 雨宮敬次郎ほか41名により「東京電気鉄道1」の敷設特許請願書が提出される
(発起人には三浦泰輔や岩田作兵衛などの甲武鉄道派、甲州財閥の小野金六もいた)
明治26年11月 新規の市街電鉄の発起に刺激されて、「東京馬車鉄道」でも動力の変更を申請
(公称資本金50万円)
明治26年11月26日 藤岡市助や大倉喜八郎ら5名による「東京電車鉄道1」が設立願書を提出
(公称資本金40万円)
明治26年11月29日 立川勇次郎ら9名による「東京電道鉄道2」が設立願書を提出
(公称資本金40万円)
~乱立、というかなんというか、みんな時期が近すぎで盛り上がってんだなーと感じます。
甲武鉄道が市街線の延伸を目論み測量を終えるのが明治25年3月23日、
鉄道会議が市街線の許可を出すのが明治26年2月12日、新宿飯田町間の建設免許が同年3月1日、
3月末には用地買収をおえ、7月5日には飯田町側から工事を開始しているので、
中央線が燃料になっている部分もあるのかもしれませんね。~
明治28年 4月18日 雨宮の「東京電気鉄道1」藤岡の「東京電車鉄道1」立川の「東京電道鉄道2」が
帝国ホテルにおいて三派合同の会議を開き各派総代人連署をその筋に追願
雨宮を発起人総代として改めて「東京電気鉄道2」設立を出願する
(公称資本金100万円)
明治28年 4月27日 草刈矍翁ほか数名が「東京中央電気鉄道1」を出願するも、
8月9日に「東京電気鉄道2」に合流
明治28年 6月 2日 「東京電気鉄道2」は発起人規約を定め事務所を築地館に置く
明治28年 6月19日 藤山雷太、渋沢栄一らが「東京電車鉄道2」を出願(公称資本金380万)
(発起賛同者には福澤捨次郎、中上川彦次郎、益田孝、朝吹英二などがいて、いわゆる三井・福澤派)
明治28年 7月 雨宮が主唱して紅葉館で「東京電気鉄道2」は発起人総会を開く
(8月に中央電気が合流し資本金は150万円)
明治28年 8月 千葉胤昌が「東京府内電気鉄道」を出願
明治28年 9月 2日 関 直彦ほか4名が「東京中央電気鉄道2」を、17日「東京目黒電気鉄道」を出願
明治28年 9月 5日 松本錬蔵が「東京青山電気鉄道」を、7日「江東電気鉄道」をそれぞれ出願
明治28年12月15日 「東京電気鉄道2」の事務所を築地館から京橋区山城町三番地に移し
有田秀造を事務主任にする
明治29年 3月 2日 地主の協賛を集めて野中万助ほか49名が「東京自動鉄道」を出願
(自由党・星亨・地主派)
明治29年 4月 2日 森岡昌純ほかが「川崎電気鉄道」を出願(公称資本金55万円)
明治29年10月29日 内藤義雄が「王子電気鉄道」を出願
明治29年11月 5日 加藤鉄三郎ほか5名が「永代橋電気鉄道」を、村井寛吾が「城南電気鉄道」を出願
明治29年12月26日 福島松之助が「浅草電気鉄道」を出願
明治30年 2月25日 深津忠雄が「京中電気鉄道」を出願
明治30年 2月22日 「東京電気鉄道2」は帝国ホテルで発起人総会を開く
明治30年 7月20日 「東京府内電気鉄道」「東京中央電気鉄道2」「東京目黒電気鉄道」
「東京青山電気鉄道」「江東電気鉄道」「王子電気鉄道」「永代橋電気鉄道」
「城南電気鉄道」「浅草電気鉄道」「京中電気鉄道」が6月中に
雨宮の「東京電気鉄道2」に合流し追願の手続を完了
(公称資本金は500万円となり三井派の380万円を凌ぐ)
明治30年 8月16日 「川崎電気鉄道」が郡部のみ出願路線を許可される
~ここで、色分けの説明をしますと雨宮氏の甲武鉄道派閥と、最初期に出願していた大倉・立川組の
第一次「東京電気鉄道2」合同派閥がオレンジ色です。青紫がそれ以降に合流する第二次合同組。
青は「東京馬車鉄道」をもととする「東京電車鉄道3」
緑は福澤山脈(慶応閥)たる福澤家+三井組(捨次郎は諭吉の息子で中上川は諭吉の甥っ子)、
赤紫は地主+野中万助+自由党で利光さんがここ贔屓、
赤は鼎立三電のなかでも弱小な元・川崎電気組=「東京電気鉄道3」~
明治30年10月 樺山内相が雨宮派と三井派に市内を二分する形で許可を内定する
(「川崎電気鉄道」も信濃町までの延伸の許可を内定)
明治30年11月29日 利光鶴松が東京市会において樺山内相の許可を取り消すよう建議案を提出
明治31年 6月 肥塚龍東京府知事が市会にはからず「東京馬車鉄道」の運賃値上げを許可し
これに怒こった利光が府知事への弾劾決議を提案、市会が満場一致で賛成するも
運賃値上げは決行される
~第二次松方内閣(松隈内閣)で内務大臣だった樺山資紀は市内の交通機関を政党操縦する目的で
東京市内を二分して山手方面を雨宮側に、下町方面を三井側に下付する方針を打ち出します。
しかも市の監督権を認めず、市に対する公納金の規定もない市側に不利なものだったので、
「東京自動鉄道」側だった利光さんはこれを阻止しようと建議案を提出、当然市会も一致して賛成し
15区から一名ずつ委員をだして総理大臣と内務大臣に肉迫、市会の意見は容れられてとりあえず
この許可は中止となりました。
利光さんが東京市会議員になったのは、
当時東京市会および東京府が改進党系の牙城になってる所へ切り込む為でした。
明治14年の政変で失脚した大隈さんと慶応閥らがはじめたインテリな改進党に比べ、
地方農民出身の多い自由党系は事件を起こしたり壮士を動員したりと暴力的なイメージが強く
都市部の有権者には人気がなかったのです。
そこで自由党出身の利光さんは改進党ににぎられていた東京市政を、
なんとか自由党の手に届くものにしたいとの意志を強くしていました。
遅々として進まぬ市内交通問題や近代水道化問題や港湾整備問題は、そのいい機会だったよう。
星亨の「自由党も地方をむいてかつての武勇伝を自慢するのではだめだ、東京の実業家の信頼を
勝ち取らねば今後はうまくいかない」との考えに共鳴して利光さんは東京の実業家に近づき、その力になって信用を得、またその主義の主唱者たる星亨自身にも参加して貰う為市会進出の足場を作ります。
その動きを年表にするとこんなかんじ。
明治29年 2月 利光鶴松、深川区から立候補し無競争で東京市会議員に当選
明治31年 3月 利光鶴松、東京府第五区(本所・深川区)より衆議院議員に当選
明治31年 6月 憲政党創立、利光鶴松は幹事となる
明治32年 6月 星亨、麹町区から立候補し東京市会議員になる
明治34年 1月 星亨、東京市会議長となる
明治34年 6月21日 星亨、東京市会で兇刃に倒れる
星亨氏が「東京市街鉄道」の話をまとめたのは、そんな明治32年の市会議員になったころでした~
明治32年 1月13日 「川崎電気鉄道」に市内線(信濃町~広尾)が特許下付
明治32年 7月18日 星亨の周旋で藤山雷太らの「東京電車鉄道2」と野中万助らの「東京自動鉄道」が
雨宮の「東京電気鉄道2」に合流
社名を「東京市街鉄道」とし、19日帝国ホテルで契約書を交わす
(公称資本金1500万円、各派500万円ずつ)
明治32年 8月14日 「東京市街鉄道」の出願をし直す
~利光さんの作った足場に乗っかって星亨氏は順調に市会で勢力をのばし、その政治力でもって
膠着していた市内電車問題も一応の形にまとまります。
星氏は小松原英太郎内務次官をたずねて三派合同を提案しその賛意を得ると、西郷内相にもあたり、
西郷内相から山縣首相に話を通して貰って政治的な地固めをすませ、
当事者の雨宮さん説得には利光さん、益田・中上川の三井派には星さんがあたり、
野中万助にはあらかじめ話は通してあったので、合議の末各派から五人の委員をだすことにし、
浜町の常盤屋で会談ののち各派平等同権とした上で合同契約書をつくり署名調印を成立させました~
明治32年10月 8日 「東京市街鉄道」発起人総会を開き、市参事会決議への意見をまとめ、
9日市長の召還で三派代表が出頭、
公納金問題で、8朱と法定積立準備金を除く10分の3の利益を申し出る
明治33年 5月 「川崎電気鉄道」が岡田治衛武による「東京電気鉄道3」に改称
(公称資本金80万円、近藤廉平の日本郵船・三菱系)
明治33年 6月 9日 「東京市街鉄道」に特許下付、
「東京馬車鉄道」には動力変更の特許、命令書を下付しようとしたが、
会社側が命令書の条項に不服ありと受領を拒否
明治33年10月 2日 「東京馬車鉄道」が動力変更の認可を受領、30日に「東京電車鉄道3」と改称
明治35年 4月18日 「東京市街鉄道」が創立総会を開く
~内務省と東京市会を通過した「東京市街鉄道」の申請書は東京市参事会の手にうつります。
市参事会は市政の執行決定機関で、当時の委員は渋沢栄一、田口卯吉、吉野世経、鳩山和夫、星亨ら
著名人十二名と、松田秀雄市長、朝倉外茂鉄助役、浦田治平助役の三名の合計15名。
うち渋沢、田口、鳩山、星が民有論、4名が市有論、7名が中立で、新聞が煽動的に書き立てたため
区会議員も市有民有の区にわかれて市、府、内務大臣、首相宛に建白書を提出の大論争がおきます。
特に東京瓦斯会社の大橋新太郎専務は、出願時に「東京市街鉄道」が架空単線式だったので、
ガス管の腐食に繋がると懸念し、内相時代市有論だった板垣退助にもはたらきかけて市有演説をさせ、
事を大きくしました。(内務省と市会の審査の点で、単線式は複線式に訂正させられてる)
また枢密顧問官の伊東己代治が板垣氏に「星亨は閣下が内相時代に市有の省議を決定したのに、
一言の挨拶もなく民間に経営させようとしているのは無礼ではないですか」と焚きつけたため、
純情な板垣さんの心に火が付いて、民有反対の大旗を振る格好になったともいいます。
利光さんはこの二人への報復手段を考え、大橋専務には瓦斯会社からのガス管埋設の願書を握り潰し
一切許可しない根回しをし、伊東男爵には永田町の邸に道路が貫通する市区改正案をたてて新聞に
書かせ、驚いた伊東さんが利光さんに会見を申込んできたので、改正案をひっこめるかわりに
板垣さんの市有運動を止めさせるよう条件をだします。
しかし火が付いた板垣さんを収めるのは容易ではなかったようです。
とにかく市参事会の結論は民有に決し、内務省に仕事がうつってからは西郷内相が閣議にはかり
即日承認され、今度は東京府を経て特許状は下付されました。
星氏はじめ発起人一同は築地新喜楽に集まり特許状を床の間に飾ってこれを祝ったといいます。
しかし、創立委員長すなわち社長を誰にするかで一波乱ありました。
三井派は資金調達が容易で世間から人気があり、地主派の野中派は雨宮さんが嫌いだったので、
創立委員中では雨宮反対派が多数でした。
けれどもこの中で直接、鉄道経営のノウハウを知っているのは雨宮さんなので、
星さんでさえ初めは三井派だったのに対し、利光さんは「ただの会社ならともかく三井家の若旦那を
床の間の置物にするのは公卿を大将として戦場に臨むようなもので、途中できっと後悔するから、
人情に於いても長く交通機関問題に携わってきた雨宮氏にするべきだ」と説得し、これに納得した
星さんが創立委員に向かって雨宮氏を委員長に推すことを明言して雨宮さんに決したということです。
電車を通すための道路拡充で市区改正を速成するため、星・利光さんは会社と東京市の連絡役と
なっていましたが、そこへ日清戦争の恐慌が来襲し、一時は10円以上のプレミアム付だった会社の株
は50銭でも買い手のつかない状況となり、義和団事件などで世情は不安でした。そんなときに、
星亨が暗殺されて「東京市街鉄道」は有力な後援者も失います。
利光さん自身もこれで弱っていたのか、外国人からの融資の話にのっかり、雨宮さんほか一名が
「そんな外人には取り合わぬ方がいい」と反対するのを説得し、保証人を東海銀行と露清銀行ときめ
創立委員一同が横浜に向かうと露清銀行のほうが「そんな話はきいていない、詐欺師の類でしょう」
といわれ「このときほど恥をかいたことはない」というほど面目を失っています。
結局お金は、雨宮さんと親しい安田善次郎さんにお願いし「次の3ヶ条を守るのであれば」という
条件で出資してもらいます。
「1安田は一株ももたない」「2株式の8割を融通する」「3電車賃は5銭均一にする」
このことを発表した所、会社の信用も回復して株の申込みは忽ち進捗しますが、のちに雨宮さんは
「電車賃三銭均一」を実施し、この約束を破ります。
ともかく会社は資本金を1500万円から300万円に縮小し、第一回払込は東海銀行と安田銀行に
引き受けてもらい、特許路線を5期に分けて起工することになりました。
こうして「東京市街鉄道」は発足しますが、
じつはさらに、元馬車鉄道の「東京電車鉄道3」とも合同しようという動きがおこります。
「東京電車鉄道3」は市の中央を通る路線で採算性が高いものの、市街鉄道の出現で延伸が難しく
電化もしなければならない情勢で、成長が行き詰まっていました。一方
「東京市街鉄道」は大規模な免許線路をもちつつ資本が集まらず着工もあやうい状況にあり、
ここで両者の弱点が一致し、合併の話がもちあがるのです。~
明治36年 3月 東京府知事千家尊福と東京商業会議所会頭渋沢栄一の仲介で
「東京市街鉄道」と「東京電車鉄道3」の合併の議起こる
明治36年 7月 「東京市街鉄道」と「東京電車鉄道3」の合併仮契約調印の臨時株主総会が開かれるも
雨宮が反対を唱える。雨宮派の退場後、合併派のみで合併承認がなされ、
「東京電車鉄道3」社長・牟田口元学と「東京市街鉄道」専務取締役・藤山雷太の
連名で合併願を提出、これに対し雨宮派は合併決議無効の仮処分を申請し、
芝区裁判所がこれを受理し、合併派の仮処分解除の申請を却下
明治36年 8月 合併派は臨時総会を開き雨宮の取締役を解職するほかなしと決め、
会長を吉田幸作とし、監査役の根津嘉一郎を議長として議事をひらくと、
雨宮派は会長である雨宮を議長としないのは不法であると多数の壮士をつかって騒ぎ、
臨場警察官が治安に害ありとして解散を命じる
~一時は合併調印に賛成だった雨宮さんですが、なぜ急に過激な反対運動に出たかといえば、
東京電車と市街鉄道の幹部の間で合併後の新会社の役員に雨宮さんをいれない秘密条約が
むすばれていたことを知ったからだと云います。
合併事件は春に始まり秋になっても紛糾し続け、収束を見せなかったので民営論を強力に薦めた立場の利光さんは断然決意し、合併を捨てて独立経営の方針を打ち出します。井上敬次郎の賛成を得て、
京橋区三十間堀の料亭に創立委員を招き提議すると、合併派は利光さんに事態の収拾を一任し、
利光さんが雨宮さんにあたったところ、雨宮さんも困ったいたので「君に一任する」との答えを得て、
重役の陣容を刷新し、取締役会長を雨宮さんから高島嘉右衛門にかえ、専務を吉田幸作、
理事を立川勇次郎、運輸監督を井上敬次郎、取締役を雨宮・根津という形におさめます。
利光さんは創業以来、表に立たず顧問の地位にとどまります。
そんな、合併問題で大もめの間に、馬車鉄道の電化が進み、市街鉄道も開業しはじめるのです。~
明治36年 8月22日 新橋ー品川間(元「品川馬車鉄道」の区間)で東京電車鉄道が走り始める
明治36年 9月15日 数寄屋橋ー神田橋間で「東京市街鉄道」が走り始める
明治36年11月 「東京市街鉄道」は合併をあきらめ、馬越恭平の仲裁で重役は総辞職し、
あらたに高島嘉右衛門が取締役会長に就任、
藤山雷太は専務取締役を辞し、雨宮敬次郎も取締役に退く
明治38年 3月 高島嘉右衛門が取締役会長を辞任、再び雨宮敬次郎が会長に返り咲く
~いちど会長職を退いた雨宮さんがふたたび返り咲いたのは、満州や清国に漫遊するため
「東京市街鉄道会長の肩書きをもっていきたいから」との希望で、高島さんも病気中だったため
この提案を受け入れ、重役連に相談して異論もでなかったので実現したようです。
このころ利光さん自身も取締役になりました。~
明治39年 3月 雨宮敬次郎、株主の運賃値上げ派多数により立川勇次郎と共に役員を辞し社外へ去る
明治39年 3月11日と15日に日比谷公園で社会主義者主宰の運賃値上げ反対の市民大会がおこる
明治39年 6月11日 渋沢栄一と馬越恭平の裁定で、三社合併の条件がまとまり合併仮契約書締結
明治39年 8月 三社合併の認可が下りる
明治39年 9月 5日 三社合併の条件である四銭均一に反対するデモ隊が電車十数台を焼き打ちにし
電車の営業が数日止まる
明治39年 9月11日 東京三鉄道が合併し「東京鉄道」となる
~ところで「東京市街鉄道」は市内三銭均一の料金制度をとっていました。
これは雨宮さんの公共交通は市民の利益のためにとの主義によるものですが、
立案したのは藤岡市助電気技師でした。馬車鉄道の運賃収入から計算して、これでも十分採算は
とれるとの見通しではじめたものでしたが、採算性の高い馬車鉄道の路線とはちがい、
市街鉄道の電車路線は経費が予定していた3倍はかかり、運賃値上げをするほかなくなりました。
藤岡技師は責任を取って免職になったといいます。
市街鉄道発端のダンピングで開業していた市内電車三社は疲弊しており、三社共同で五銭均一に
値上げの申請をだすことにします。三銭均一を打ち出した雨宮さんはこの大勢をみて辞職しました。
運賃値上げは当然市民の反発が予想されるので、新聞各社に説明をし、東京市会には星亨の地盤を
受け継いだ森久保作蔵に働きかけてもらい、原内相には元田肇、岡崎邦輔から事情を説明して、
財界を牛耳っている井上馨侯爵には渋沢栄一と近藤廉平から了解をとってもらいました。
さらに千家尊福東京府知事、安樂兼道警視総監にも事情を了解してもらっての発表でしたが、
案の定市民から値上げ反対の声が上がり運動は拡大、日露戦争で鉄道は国有が望ましいという
意識も高まって私鉄と国とが対峙していた時期だったので市有民有論が再熱、
この上市民が騒いでは大変だと政府は値上げ申請を却下、
株価も暴落して窮地に陥った三社は合同の道を歩みます。
9月11日の創立総会で会社解散にともない、新会社の役員が選出されました。
社長は馬車鉄道時代から社長であった牟田口元学氏、
常務は「東京電気鉄道」の専務だった川田 鷹氏と「東京市街鉄道」の取締役の井上敬次郎氏、
それに安藤保太郎氏が加わります。取締役には「東京電車鉄道」の中野武営氏と利光さん、それに
「東京電車鉄道」で監査役、「東京市街鉄道」で取締役だった根津さんもなります。
新会社は四銭均一制を打ち出したので市民がまた騒ぎだし、電車焼き打ち事件も発生、
市営化論の声がふたたび高くなります。~
明治41年 6月 市と交渉して市営化を申請するも大蔵省によって不許可になる
明治41年12月 「東京鉄道」の運賃改定案(五銭均一)が却下される
明治42年 3月 値上げ失敗の責任をとり臨時株主総会で取締役と監査役全員が辞職を申し出る
千家尊福が社長に、常務3人と根津・小野は重役に残り、5人が新任となる
明治44年 8月 1日 「東京鉄道」市有化、東京市電気局が開設され東京市電となる
~明治40年末頃、日露戦争後の一時的な好況が去ると、東鉄株は再び低落します。
市街鉄道市有論者の中島行孝市議は尾崎行雄市長と森久保作蔵市参事会に働きかけて、
この株価低迷期にこそ市が買収すべきであると進言します。
会社側も相当の価格であるから市有賛成の意見で、そこから正式に買収交渉がはじまるのですが
仮契約もすみ株主総会の承認も得て市会も通過、市と会社は連署で内務・大蔵両省に認可の申請を
行いました。しかし公債の価格に悪影響を及ぼすおそれがあるからとの理由で貴族院から反対にあい
日露戦争で鉄道公債も暴落し普通公債も前例のない低落をし、公債価格の維持に自信のない大蔵省も
市債の発行に反対の姿勢だったため、内務省の認可はあったのに大蔵省に不許可にされます。
桂内閣となり経済政策に尽力することが表明された為、株価は暴騰しインフレの様相となったので
四銭均一ではとても立ちゆかないと、会社はふたたび運賃値上げを画策します。
平田内相には渋沢栄一と近藤廉平が赴き、鉄道院総裁後藤新平には杉山茂丸氏と牟田口社長が陳情、大浦農相には松本剛吉氏に連れられ利光さんが陳情しに向かいます。
桂首相には側近を通じて陳情し、警視庁、東京府、東京市会にも根回ししてその了解を得ます。
しかし後藤総裁には東鉄が年八分の配当を続けている事を指摘され、配当を年五分にして
再申請するとこれも「公債証書と同じで諦められぬこともない」と蹴られたため、
株主総会を通して年四分の配当にして申請しなおしました。
当局は判断を保留しつつけ、市民は反対運動をおこし、結局値上げ申請は却下されます。
この間貴族院の妨害があったのは、このころ原敬内相のもと郡制廃止法案が党命を左右するほどの
大問題となり、衆議院を通過したあと貴族院で否決されるもその賛否が僅差だったため
山縣有朋さんをはじめとする官僚閥はショックを受けます。
その原内相のために利光さんが多額の献金をしていたことで、山縣閥の恨みをかっていた事がわかり、
利光さんは運賃値上げの失敗をとって役員が総辞職した時に取締役を退きます。
これまで市会を強引に操縦してきた為、内外に敵も多くなってきていたことも理由でした。
新役員には市民にも人気の人でなくてはと出雲禰宜の家柄の千家尊福さんを引き出すことにしました。
これは、東鉄市営化が西園寺内閣で却下されたことをうけて
尾崎市長が市参事会と共に辞表を提出したとき、市参事会は全員再選したにもかかわらず
尾崎市長の辞表だけが受理されたのが不公平だと反対して、後任に千家さんが内定していたのを
尾崎市長に返り咲かせた経緯があり、その罪滅ぼしの面もあったという。
市内交通の独占で反感を買っていた牟田口・利光勢がしりぞくと、
弊害がとりのぞかれた東鉄の市営化は時間の問題となりました~
=============================================
最後に「東京鉄道」の役員をを退いた利光さんのその後の経歴が以下。
市内交通の弊害を見続けてきた結果、小田急の元となる「東京高速鉄道」のような
地下鉄にいち早く出願したのも故なるかなという気がします。
明治43年10月 鬼怒川水力電気創立、社長となる
明治44年初夏 千代田瓦斯、鬼怒川水力電気、東京鉄道の重役をつれて上方と名古屋へ遊び、
西の株主との懇親を深める(岩下清周の案内で箕面、宝塚へも行った)
明治44年 8月 東京鉄道が市有化、清算人会長となる、京成電車の会長、千代田瓦斯の社長となる
京王線開業100周年!を記念するいみあいで、
自分なりに今まで調べた京王に関する事柄を総括してみようかなという試み。
正直、散乱した主要な資料を引っ張り出すだけで疲労困憊になってます。
京王に関してはなぜかライトな部分しか表にでて来ないので、
ちょっとお話を作るには密度が足りないというか・・・
(なにがわからないのかよく分からない程度にはわからないという・・・謎)
年表になってる前史をならべると、こういう感じ?
明治38年12月12日 日本電気鉄道として蒲田-調布-府中-立川と新宿-府中の支線の軌道敷設を出願
明治39年 8月18日 武蔵電気軌道と改称、立川-八王子と府中-国分寺の路線を追加出願
明治40年 6月25日 新宿-八王子の本線と、府中-国分寺の支線、立川-立川停車場の特許を得る
明治40年 7月4日付けで先行出願した電気事業の許可を得る
明治43年 4月12日 京王電気軌道に改称
明治43年 9月21日 資本金125万円で設立
これはまあ、ウィキ様です・・・。社史の方だと、日付がまず省かれているという、ね。
蒲田が起点となっている蒲田ー調布ー府中ー立川が本線で、新宿ー府中が支線なんですけど、
認可されたのは本線の一部と支線のほうだったわけですね。
で、ここで調布といわれているのは、布田調布と田園調布のどっちかな、あるいは両方か。
※社史によると「蒲田停車場を起点とし、池上村~調布村~玉川村および砧村~千歳村~狛江村~調布町~多磨村~府中町~西府村~谷保村~立川村~立川停車場」とあるので両方ですね。
だとすると、東急多摩川線とルートが被ってくるのかな・・・。
かんじとしては、あれかなぁ。多摩堤通りを通って、二子玉川で玉川線と接続して、
府中いくかんじのルートかなぁ・・・。これだと多摩川を越える必要も無いわけで。
「京王帝都電鉄三十年史」によると、日本電気鉄道のときの発起人は渡辺熊之進ほか17名です。
それが武蔵電気軌道になると、特許状の写真からも分かるように渡辺熊之進ほか60名になってます。
つまり61名もの発起人がいるわけで。その中の代表が渡辺熊之進さんなんですね。
資金募集しているあいだに、増えたんだろうなぁ・・・。
渡辺熊之進は前の記事にも書いたとおり、そもそもは玉川砂利電気鉄道の発起人であり、
玉川電気鉄道の経営者でした。それが
明治36年10月4日専務取締役就任
明治38年8月15日事業遅滞の責任をとり平取締役に転任
明治39年1月3日取締役辞任
というかんじで、経営失敗の責任を取って辞任しています。
日本電気鉄道の出願が、その直前の12月12日ですから、こっちで起死回生を図ったのではないかと。
武蔵電気鉄道の発起人名簿から発起人を書きだしてみますと、
東京市麹町区内内幸町1丁目5番地 渡辺熊之進(玉川砂利電気鉄道の発起人)
東京府荏原郡駒沢村深沢371番地 谷岡慶治(玉川電気鉄道の発起人)
東京府荏原郡玉川村字用賀1572番地 鈴木虎之助(玉川村一の財産家、玉川線の駅設置に協力)
東京府荏原郡碑衾村2672番地 栗山九次郎(衾西部耕地整理組合の組合長で自由が丘誕生の祖)
東京府荏原郡玉川村字用賀659番地 金子為太郎(玉川村村長)
東京府荏原郡玉川村上野毛239番地 田中筑{門+吾}(玉川電鉄相談役)
など、このあたりが玉川とも関係の深そうなかんじの、渡辺さんの協力者ではないかな~?
それ以外だと
東京府北多摩郡武蔵野村大字境172番地 秋本喜七(衆議院議員、郡部会議長、玉川水道監査役)
東京市麻布区麻布山元町58番地 根津嘉一郎(東武鉄道社長など、甲州財閥系)
東京市日本橋区兜町2番地 小池国三(山一証券の祖、若尾逸平の下にいた、甲州財閥系)
東京市麹町区5番町2番地 伊藤大八(衆議院議員、鉄道局長、満鉄副総裁も務めた)
東京府北多摩郡立川村1788番地 中島治郎兵衛(神奈川県会議員,東京府北多摩郡会議長)
東京市京橋区南新堀町1丁目4番地 中沢彦吉(衆議院議員、東京市議会議長、中沢銀行を創立)
東京府荏原郡品川町大字北品川宿82番地 漆昌巌(品川町長、衆議院議員、品川馬車鉄道社長)
東京市京橋区釆女町29番地 越山太刀三郎(衆議院議員、日報社専務、東京電灯常務)
山梨県中巨摩郡玉幡村119番戸 新海栄太郎(教育者、山梨県会議員,東京米穀取引所理事)
あたりが有力な政治家や実業家かな。ほかにも
東京市小石川区中富坂町19番地 森久保作蔵(三多摩自由党壮士の指導者、夜の東京市長とも)
東京市深川区深川大和町8番地 木村許一郎( 東京材木問屋同業組合の初代組合長)
このへんは利光鶴松さんとの関係が深そうだなぁ~と。(深川は利光さんの選挙地盤だった)
東京市日本橋区阪本町9番地 徳田孝平(徳田商会創業者、相場師)
・・・これは鉄道投機によくいる手合いかな?
あとは地元の有力者だと思われる。
佐伯幸四郎(北多摩郡谷保村)内藤信吉(北多摩郡西府村)竹内太左衛門(北多摩郡府中町)
村野泰治(北多摩郡多磨村)井上平左衛門(北多摩郡調布町布田)富沢兵蔵(北多摩郡神代村深大寺)
川本弥太郎(北多摩郡千歳村)渡辺万助(北多摩郡三鷹村)小町利三郎(北多摩郡狛江村)
西山八郎(北多摩郡砧村喜多見)岩本源蔵(北多摩郡千歳村烏山)
並木代右衛門(豊多摩郡代々幡村)石原牛之助(豊多摩郡杉並村)
内藤貞雄(豊多摩郡高井戸村・高井戸村の村長)
芹沢新平(荏原郡世田ヶ谷村)須山権三郎(荏原郡蒲田村)
月村惣左右衛門(荏原郡蒲田村御園)月村治兵衛(荏原郡蒲田村御園)
森孫右衛門(荏原郡蒲田村御園)遠藤友右衛門(荏原郡蒲田村大字蒲田新宿)
野村治郎吉(荏原郡蒲田村大字蒲田新宿)三部甚左右衛門(荏原郡池上村)
広瀬三治郎(荏原郡玉川村用賀)
鈴木左内(荏原郡松沢村上北沢・六郷橋をかけた人)
それと爵位のある華士族が10名。これは電車が投資対象として有力視されていたためのよう。
広沢金次郎(伯爵)宗重望(伯爵)
新庄直陳(子爵)竹内惟忠(子爵)内田正学(子爵)
西五辻文仲(男爵)野田谽?通(男爵)松平正直(男爵)本多副元(男爵)杉渓言長(男爵)
その他
藤本辰太郎(東京市四谷区永住町)田中伊三郎(東京市京橋区宗十郎町)
宇田川源七(南足立郡江北村)初見八郎(東京市下谷区仲徒町・中江兆民に師事した新聞記者か?)
久能木宇兵衛(東京市日本橋区室町・久能木商店の当主かな?)岸真次郎(東京市麹町区永田町)
喜谷市郎右衛門(東京市京橋区大鋸町)鳥居梅次郎(南足立郡千住町)
竹内繁之助(東京市神田区錦町)
職業不明のひともいるけど、東京市内在住ならそれなりの資本家ではないかな。
山梨県在住が一人いるだけで、他は全員東京府内または東京市内在住のひとでまかなわれています。
んまあ、京王のテリトリーが東京からでてないので、当然っちゃあ、当然な訳ですが。
このころは、一部甲州系と、玉川電気鉄道ゆかりの一団が注目すべき点ではないでしょうか。
それが、明治40年代の市内電車の動向の末に新たな勢力が加わるのですが、それはまた今度で。
自分なりに今まで調べた京王に関する事柄を総括してみようかなという試み。
正直、散乱した主要な資料を引っ張り出すだけで疲労困憊になってます。
京王に関してはなぜかライトな部分しか表にでて来ないので、
ちょっとお話を作るには密度が足りないというか・・・
(なにがわからないのかよく分からない程度にはわからないという・・・謎)
年表になってる前史をならべると、こういう感じ?
明治38年12月12日 日本電気鉄道として蒲田-調布-府中-立川と新宿-府中の支線の軌道敷設を出願
明治39年 8月18日 武蔵電気軌道と改称、立川-八王子と府中-国分寺の路線を追加出願
明治40年 6月25日 新宿-八王子の本線と、府中-国分寺の支線、立川-立川停車場の特許を得る
明治40年 7月4日付けで先行出願した電気事業の許可を得る
明治43年 4月12日 京王電気軌道に改称
明治43年 9月21日 資本金125万円で設立
これはまあ、ウィキ様です・・・。社史の方だと、日付がまず省かれているという、ね。
蒲田が起点となっている蒲田ー調布ー府中ー立川が本線で、新宿ー府中が支線なんですけど、
認可されたのは本線の一部と支線のほうだったわけですね。
※社史によると「蒲田停車場を起点とし、池上村~調布村~玉川村および砧村~千歳村~狛江村~調布町~多磨村~府中町~西府村~谷保村~立川村~立川停車場」とあるので両方ですね。
だとすると、東急多摩川線とルートが被ってくるのかな・・・。
かんじとしては、あれかなぁ。多摩堤通りを通って、二子玉川で玉川線と接続して、
府中いくかんじのルートかなぁ・・・。これだと多摩川を越える必要も無いわけで。
「京王帝都電鉄三十年史」によると、日本電気鉄道のときの発起人は渡辺熊之進ほか17名です。
それが武蔵電気軌道になると、特許状の写真からも分かるように渡辺熊之進ほか60名になってます。
つまり61名もの発起人がいるわけで。その中の代表が渡辺熊之進さんなんですね。
資金募集しているあいだに、増えたんだろうなぁ・・・。
渡辺熊之進は前の記事にも書いたとおり、そもそもは玉川砂利電気鉄道の発起人であり、
玉川電気鉄道の経営者でした。それが
明治36年10月4日専務取締役就任
明治38年8月15日事業遅滞の責任をとり平取締役に転任
明治39年1月3日取締役辞任
というかんじで、経営失敗の責任を取って辞任しています。
日本電気鉄道の出願が、その直前の12月12日ですから、こっちで起死回生を図ったのではないかと。
武蔵電気鉄道の発起人名簿から発起人を書きだしてみますと、
東京市麹町区内内幸町1丁目5番地 渡辺熊之進(玉川砂利電気鉄道の発起人)
東京府荏原郡駒沢村深沢371番地 谷岡慶治(玉川電気鉄道の発起人)
東京府荏原郡玉川村字用賀1572番地 鈴木虎之助(玉川村一の財産家、玉川線の駅設置に協力)
東京府荏原郡碑衾村2672番地 栗山九次郎(衾西部耕地整理組合の組合長で自由が丘誕生の祖)
東京府荏原郡玉川村字用賀659番地 金子為太郎(玉川村村長)
東京府荏原郡玉川村上野毛239番地 田中筑{門+吾}(玉川電鉄相談役)
など、このあたりが玉川とも関係の深そうなかんじの、渡辺さんの協力者ではないかな~?
それ以外だと
東京府北多摩郡武蔵野村大字境172番地 秋本喜七(衆議院議員、郡部会議長、玉川水道監査役)
東京市麻布区麻布山元町58番地 根津嘉一郎(東武鉄道社長など、甲州財閥系)
東京市日本橋区兜町2番地 小池国三(山一証券の祖、若尾逸平の下にいた、甲州財閥系)
東京市麹町区5番町2番地 伊藤大八(衆議院議員、鉄道局長、満鉄副総裁も務めた)
東京府北多摩郡立川村1788番地 中島治郎兵衛(神奈川県会議員,東京府北多摩郡会議長)
東京市京橋区南新堀町1丁目4番地 中沢彦吉(衆議院議員、東京市議会議長、中沢銀行を創立)
東京府荏原郡品川町大字北品川宿82番地 漆昌巌(品川町長、衆議院議員、品川馬車鉄道社長)
東京市京橋区釆女町29番地 越山太刀三郎(衆議院議員、日報社専務、東京電灯常務)
山梨県中巨摩郡玉幡村119番戸 新海栄太郎(教育者、山梨県会議員,東京米穀取引所理事)
あたりが有力な政治家や実業家かな。ほかにも
東京市小石川区中富坂町19番地 森久保作蔵(三多摩自由党壮士の指導者、夜の東京市長とも)
東京市深川区深川大和町8番地 木村許一郎( 東京材木問屋同業組合の初代組合長)
このへんは利光鶴松さんとの関係が深そうだなぁ~と。(深川は利光さんの選挙地盤だった)
東京市日本橋区阪本町9番地 徳田孝平(徳田商会創業者、相場師)
・・・これは鉄道投機によくいる手合いかな?
あとは地元の有力者だと思われる。
佐伯幸四郎(北多摩郡谷保村)内藤信吉(北多摩郡西府村)竹内太左衛門(北多摩郡府中町)
村野泰治(北多摩郡多磨村)井上平左衛門(北多摩郡調布町布田)富沢兵蔵(北多摩郡神代村深大寺)
川本弥太郎(北多摩郡千歳村)渡辺万助(北多摩郡三鷹村)小町利三郎(北多摩郡狛江村)
西山八郎(北多摩郡砧村喜多見)岩本源蔵(北多摩郡千歳村烏山)
並木代右衛門(豊多摩郡代々幡村)石原牛之助(豊多摩郡杉並村)
内藤貞雄(豊多摩郡高井戸村・高井戸村の村長)
芹沢新平(荏原郡世田ヶ谷村)須山権三郎(荏原郡蒲田村)
月村惣左右衛門(荏原郡蒲田村御園)月村治兵衛(荏原郡蒲田村御園)
森孫右衛門(荏原郡蒲田村御園)遠藤友右衛門(荏原郡蒲田村大字蒲田新宿)
野村治郎吉(荏原郡蒲田村大字蒲田新宿)三部甚左右衛門(荏原郡池上村)
広瀬三治郎(荏原郡玉川村用賀)
鈴木左内(荏原郡松沢村上北沢・六郷橋をかけた人)
それと爵位のある華士族が10名。これは電車が投資対象として有力視されていたためのよう。
広沢金次郎(伯爵)宗重望(伯爵)
新庄直陳(子爵)竹内惟忠(子爵)内田正学(子爵)
西五辻文仲(男爵)野田谽?通(男爵)松平正直(男爵)本多副元(男爵)杉渓言長(男爵)
その他
藤本辰太郎(東京市四谷区永住町)田中伊三郎(東京市京橋区宗十郎町)
宇田川源七(南足立郡江北村)初見八郎(東京市下谷区仲徒町・中江兆民に師事した新聞記者か?)
久能木宇兵衛(東京市日本橋区室町・久能木商店の当主かな?)岸真次郎(東京市麹町区永田町)
喜谷市郎右衛門(東京市京橋区大鋸町)鳥居梅次郎(南足立郡千住町)
竹内繁之助(東京市神田区錦町)
職業不明のひともいるけど、東京市内在住ならそれなりの資本家ではないかな。
山梨県在住が一人いるだけで、他は全員東京府内または東京市内在住のひとでまかなわれています。
んまあ、京王のテリトリーが東京からでてないので、当然っちゃあ、当然な訳ですが。
このころは、一部甲州系と、玉川電気鉄道ゆかりの一団が注目すべき点ではないでしょうか。
それが、明治40年代の市内電車の動向の末に新たな勢力が加わるのですが、それはまた今度で。
今年の2月に出たばかりらしい紀伊國屋書店発行の「新宿学」を読んだので、
折角だしこれをテキストに、去年コピーしたまんま放置してた 資料を消化しようかな~と思います。
地図は「地図で見る新宿区の移り変わり」の四谷編から・・・。
最初、神保町の秦川堂書店さんで同シリーズの牛込編がお手頃な値段で置かれてたものの、
新宿駅が範疇外だったので買わなかったのです。でもその本自体はすごく良かったので、
東上線の展示会いったとき、練馬区ふるさと文化館に四谷編と牛込編が両方置いてあるのを見て、
これ幸いと新宿駅が載ってる地図だけ頂いてきたのですよね~。
あとで考えたら、こういうのって、ふつーに近所の図書館に置いてたかもなと思い、
ネット検索してみたら、あるのは淀橋・大久保編と戸塚・落合編でした。う、うわぁ…セーフ。
淀橋編は興味あるから、明日本返すついでに借りてこよう♪

一番左は、明治12年の東京実測図、で右二つは明治20年の実測図とそれの拡大図です。
明治12年のはさすが、まだ山手線(日本鉄道品川線)すら通ってません(笑)
「角筈村」と描かれた三角地帯が今の新宿駅があるあたりで、その先で道が合流している地点が
「追分」ですね。緑色は新宿御苑です。ここでは「宮内省植物御苑」となっています。
その右下に、火薬庫があるのが気になる所ですね。
植物御苑からぐーっと、上(北)に目を向けると「陸軍戸山学校」があり、
その右上に「早稲田村」とあります。
明治14年の政変(北海道官有物払い下げ事件)のとばっちりで大隈さん(と福澤一門)が排斥され、改進党を立ち上げて早稲田に東京専門学校を設立するので、早稲田大学もまだこの頃にはありませんね。
ちょっとした町屋と屋敷地のほかは、のどかな農村風景ってかんじです。
新宿御苑は、江戸時代まで内藤家の屋敷だったのが、明治5年に大蔵省の農事試験場となり、
明治12年から宮内省所管となって「植物御苑」となるので、この地図はちょうど宮内省のものに
なったばかりのころの物なんですね。
そして明治38年5月、日露戦争勝利を記念して凱旋将軍の歓迎会が行われ、
それ以来「新宿御苑」と呼ばれるようになったんだとか。
火薬については、神田上水との合流地点である淀橋上流左岸に寛文年間に作られた水車があり、
農家の米や小麦を挽いていたのが、ペリー来航で軍備増強に目覚めた幕府が、ここで火薬製造を
命じる。
それが、他の場所の水車で、製造中の火薬が爆発し、淀橋住民は水車移転を要請したものの、
結局1854年6月に爆発事故が起こって、その震動は5町にわたり、大空が真っ黒になったという。
それで、名主も奉行所へ申し入れて、火薬製造は中止となり、元通りの製粉水車に戻ったと。
明大前も昔、火薬庫だったというし、水の流れと火薬には密接な関係があるのかもしれませんね。
御苑右下の火薬庫も、玉川上水の四谷大木戸からの分水(余水)の流れる先にあるみたいだし。
それから明治13年には、府中~新宿追分~四谷見附の区間で乗合馬車の運行が開始したようです。
============================================
明治20年の地図になると、山手線が開通し、新宿駅(初代)が出来ています。
地図では「新宿停車場」となっていますが、最初の駅名は「内藤新宿」です。
このころは、文献の通り、駅舎が青梅街道側を向いていますね。
所在地の地名は「角筈村 渡辺土手際」江戸時代の旗本三百俵・渡辺家の下屋敷跡だそうです。
こちらの地図では、新宿御苑内の道筋もかなり詳しく書いてありますね。で、
ここでむっちゃ、目をひくのが園内の左側に出来た池。なんか、魔物みたいに不気味な形してますね。
植物用の溜め池でしょうか。でも、このいっぱいの足みたいのは、もしかして鴨猟用???
明治5年に設けられた内藤新宿農事試験場では養蚕、製茶、牧畜などが研究されていて、
それがのちに「勧農寮」となり、欧米教師を招いて「農事修学場」を設けて洋種の果実や蔬菜・花などを研究、広範囲の品種改良、多植栽培をしたとあります。
新宿タカノフルーツがハイカラな果実店として先端をゆけたのも、新宿御苑の存在が大きいようです。
新宿駅の西側には茶畑があったようで、これは外貨獲得のために茶葉や養蚕の桑の生産を
政府が奨励した策のひとつみたいです。おもしろい。
============================================

こちらは明治28年の地図と、部分拡大。
明治22年開業の中央線(甲武鉄道)が増えてます。
駅舎の他に、山手線と中央線のホームができてますね、長い。
それに甲武の市街線ものびてますね。明治27年牛込まで、28年に飯田町まで開通しています。
でも、市電はまだみあたりません。
そして火薬庫だった所が、輜重廠となり白地になってますね。軍事機密って事で記載されなくなったんでしょうか。
新宿御苑は「新宿御料地」という表記になっています。
============================================

つぎは明治42年の実測図。今まで以上に密度が濃くなっています。
黄色いラインはのちの市電(元・東京市街鉄道→明治39年東京鉄道に)の線路。
明治36年に新宿~半蔵門の路線が開通しています。
それで、この新宿の表通りは別名「電車通り」と呼ばれるのですね。

(左)新宿駅の拡大図。
中央線(39年に甲武から改名)と山手線の線路がさらに増え、下側にも側線ができています。
そして、青梅街道を向いていた初代駅舎がなくなっています。
おなじく明治39年に二代目新宿駅本屋が完成したのです。
そのお陰で、青梅街道に比べて商店が少なかった甲州街道側にも賑わいがでてきます。
でも、京王線はまだありません。(特許申請で計画中くらいの段階かな)
そして追分辻の北側に、半ループ線のような線路と
そこから別れる留置線がのびる「東鉄車庫」があります。その左の向かいは新宿警察署です。
そのさらに北がわには大村子爵の大村邸、東大久保の前田侯爵の前田邸、番衆町の濱野邸があり、
その庭には水辺があります。これと、新宿御苑をあわせて、新宿には鴨場が4つあったとは、
「新宿うら町おもて町」に書いてあった通りです。
ブラタモリでも湿地のくぼみがのこってるとか、いってたかな?
ただし、新宿御苑は、あの変な多足池はなくなって、今の景色と同じ玉藻池になってますね。
(中)もと火薬庫だった輜重廠がふたたび地図上にあらわれてますね。
「兵器支廠倉庫」と「輜重兵営」となってます。その脇を市電が通り、入り口あたりに停留所も見えます。
その南側は「青山練兵場」です。そして、そのあいだを中央線が通っています。
あと「千駄ヶ谷」の駅が増えてますね。(明治37年開業)
(右)もうひとつ、めだつ近代建物が「東京監獄」。
紫の四角い敷地の中に建物が放射状になってる施設です。右隣の「市ヶ谷監獄」はじつは
明治12年の地図から「谷町の市谷監獄署」として載ってるんですが(明治8年開設)、
さらに明治37年、東京監獄が鍛冶橋から富久町に移転してきました。
前述「新宿うら町おもて町」に電車通り(表通り)に対しての、裏通りが囚人護送の道だったと
ありますが、地図を見ていると、たしかに一本奥まった方の通りの方が煩雑な表通りより歩きやすそうな気がします。
しかし、この地図の一年後、明治43年には市ヶ谷監獄の方が
豊多摩郡野方村に移転してしまいます。(豊多摩監獄→中野刑務所)
意外と、ならんでいた時期は数年なんですね・・・。
ついでに、同じ43年に、新宿駅の西側に煙草専売局の淀橋工場が開設しています。
明治45年には淀橋側に東京ガスのガスタンク(1個め)ができます。

つづき。淀橋編の地図ももらってきました。
左が淀橋の明治43年の地図、右が大正11年の地図です。
上記のガスタンクが諦聴寺の北側にふえたのがわかります。後年2個目ができます。
大正にはいってるので、西武軌道と京王線がそれぞれの街道上に開業していますね。
とくに京王線の電車内からは、このガスタンクがよく見えたんだとか。
(そして諦聴寺の手前と甲州街道上に戻る手前でカックンカックン、カーブしてますね。これは揺れそう)
というか、ガスタンクのもとの土地の名前が「銀世界」ってなんなんだ(笑)みため公園ぽいですが。
西武軌道は大正10年8月に荻窪村~淀橋町を開業、軌間は1067mmで単線、しかも開業するや
武蔵水電(大正3年に川越電気鉄道が神流川水力電気と合併)に合併され、
さらに大正11年11月1日に武蔵水電が帝国電灯に合併。しかし帝国電灯は軌道部門はいらなかったようで、同11月16日川越電気鉄道の創立者だった綾部利右衛門に西武軌道の路線ごと譲渡、綾部はこれを受けて(旧)西武鉄道を設立しました。
(※鉄道部門を担当する武蔵鉄道は大正11年8月15日に設立、しかし鉄道業の引継は手続上の都合から同年11月16日に実施されたため、帝国電灯は15日間だけ鉄道を経営した形になったという。
武蔵鉄道は譲渡されると同時に西武鉄道に改名しました、ってなんじゃこりゃ!)
なので、このころは武蔵水電から西武鉄道への過渡期まっただ中ですね、この子。すさまじい背景だ。
浄水場の北側に停留所があり「淀橋警察署前」と読めます。
さらに引き込み線を越えた辺りでもういっこ停留所が。これは「浄水場(地?)前」かなぁ。
この軌道は土盛りで引き込み線の上を通っているのか?青梅街道にそんな余裕あるのかな、単線なれど。
この地図だけだと、ちょっと確証はもてないですね。
そして淀橋といえば浄水場。用地が玉川上水からやや離れてしまい、高低差の問題もあって、
より上流の和田堀から分水する、真っ直ぐな新水路を浄水場の南西に作りました。
震災後はより強度の高い水道管を地中につくることになったため、この新水路は埋められますが
道路としては残ります。
浄水場の敷地内には濾過用の砂利を運び込むための中央線から分岐した引き込み線がありますね。
青梅街道をよこぎっている為、それ専用の踏切もありました。
中野への迂回路は別にあったようで、その踏切は一般向けではなかったようですが、
砂利列車はそれほど本数もないので通行は黙認されていたといいます。
浄水場の落成式は明治32年12月ですが、その数ヶ月前の32年7月はこの踏切で事故があったようで、
列車が青梅街道を横断中、荷車が通りかかり、機関士は頻りに汽笛をならして注意したが、
驚いた馬がその場で狂い立ち、みるみるうちに列車と衝突、首と胴を引ききられ転倒しそのまま粉々になったと。馬子は逃げて無事だったものの、持ち主が馬の賠償を持ち込んだ所、そこは本来荷車の通っていい場所ではないので、その要求ははねのけられたといいます。
飯田町には砂利輸送の終点があるので、中央線は浄水場への砂利搬入にも適していたんでしょうね。
============================================
ピンクの敷地は煙草専売局です。結構な面積、ですが新宿の明治20年代の地図では
「字 辻」とよばれる畑っぽかったんで、土地は余ってたんでしょうなぁ。
新宿駅の西側に甲州街道口のほかに、さらに青梅街道口という電車線ホームが設けられたのは、
どうもこの専売局の従業員のためっぽいですね。
煙草工場なので、がっちり赤煉瓦で敷地を囲っているのが地図からも分かります。
ちなみに専売局淀橋工場は昭和11年に東品川へ移転します。
その跡地に私鉄の総合ターミナルをつくろうという計画もあったみたいなんですが、
東京高速鉄道も東横電鉄も免許だけで着工できてないし、戦争だしで結局ながれたっぽいですね。
地図ではそのお隣に「女子学院」があります。
『新宿学』によると、明治中期から大正にかけて新宿駅に隣接して多くの私立学校が開校したのには、
その土地の所有者であった元松平家摂津守(尾張家支藩)の理解と協力があったからだろうと。
学校地のきっかけとなったのは、明治16年新潟の地主だった夫の遺産で上京したキリスト教徒の
加藤とし子らによる「女子独立学校」の開校で、明治31年に精華学園と改名します。
明治27年には築地にあったミッション系女子学院の療養施設・衛生園も誕生、
松平家から土地を譲り受けた在日本プレスビテリアン宣教師社団から、女子学院が借地したものでした。
大正11年の地図にはさらに「日本中学校」がふえていますね。
これは大正5年に麹町にあった日本中学校が松平家から用地を取得し移ってきたものだそう。
この学校は『明治の巨人・岩崎弥太郎』によると三菱による本格的な商業学校、
「三菱商業学校」の流れを汲む2つの学校のひとつであるという。
一つは明治14年に結成された自由党の幹部が自由民権運動のための学校をつくった「明治義塾」で、
この学校は人気があったものの文部省による禁止命令で卒業者を一人出しただけで廃校に。
本家の三菱商業学校も皇族・山階宮家から土地を買い、明治11年東京神田錦町に開校したのが大人気で、東京府に追加校地の借地願いを出すほどだったのに、明治17年、先の明治義塾に母屋を取られ
そのまま廃校となる。
そしてこの日本中学校は、大学南校(東大の前身)出身で5年間英国留学もした三菱商業教員・三浦重剛が、三菱商業の英語教育復校をめざして明治18年6月設立した「東京英語学校」が前身。
明治25年に「日本中学校」に改名するも、大正3年の死去まで創立者の三浦氏が校長を務めつづけました。
だからこの移転は、その死後ということになりますね。
『新宿駅が二つあった頃』の著者さんが通っていたのも、おそらくこの学校でしょう。
本の授業のなかで、折口信夫が壇上に立ってたんで「まじか!」と個人的にびびりました(笑)
これは昭和11年に再び世田谷区に移転し、名前も「日本学園」に改名します。
そして移転後のこの場所には朝日生命の建物が建ち、長い事西口の顔となっていたのですが、
近年「東京モード学園」と、再び学園の姿に(しかもそれまでの西新宿高層ビル群のなかでもさらに斬新なデザインで)変身し、あらたな新宿駅前の景色を生み出しているのは、面白い事です。
たしか、この他に工学院もあったはずだけど、これは関東大震災で校舎が焼けた工学院が、
日本中学校の敷地を借りて移転してきたからなので、この地図にはまだ載っていませんね。
女子学院の上の三角地帯に「文」とあるのは、公立の小学校じゃないかな~。たぶん。
============================================
ついでに十二社の池。明治43年の地図では「十二双」の表記になってますが、大正では「十二社」です。
明治と大正をみくらべると、少し池が細くなっているかな??
景勝地だったここは、明治から花街として栄えっていって、昭和10年代に最盛期を迎えます。
しかし昭和17年十二社通りの整備で池が埋めたてられてしまい、その勢いは衰えていったといいます。
淀橋周辺でフライングしてしまいましたが、つぎは大正の新宿駅周辺の地図にもどります。
折角だしこれをテキストに、去年コピーしたまんま放置してた 資料を消化しようかな~と思います。
地図は「地図で見る新宿区の移り変わり」の四谷編から・・・。
最初、神保町の秦川堂書店さんで同シリーズの牛込編がお手頃な値段で置かれてたものの、
新宿駅が範疇外だったので買わなかったのです。でもその本自体はすごく良かったので、
東上線の展示会いったとき、練馬区ふるさと文化館に四谷編と牛込編が両方置いてあるのを見て、
これ幸いと新宿駅が載ってる地図だけ頂いてきたのですよね~。
あとで考えたら、こういうのって、ふつーに近所の図書館に置いてたかもなと思い、
ネット検索してみたら、あるのは淀橋・大久保編と戸塚・落合編でした。う、うわぁ…セーフ。
淀橋編は興味あるから、明日本返すついでに借りてこよう♪
一番左は、明治12年の東京実測図、で右二つは明治20年の実測図とそれの拡大図です。
明治12年のはさすが、まだ山手線(日本鉄道品川線)すら通ってません(笑)
「角筈村」と描かれた三角地帯が今の新宿駅があるあたりで、その先で道が合流している地点が
「追分」ですね。緑色は新宿御苑です。ここでは「宮内省植物御苑」となっています。
その右下に、火薬庫があるのが気になる所ですね。
植物御苑からぐーっと、上(北)に目を向けると「陸軍戸山学校」があり、
その右上に「早稲田村」とあります。
明治14年の政変(北海道官有物払い下げ事件)のとばっちりで大隈さん(と福澤一門)が排斥され、改進党を立ち上げて早稲田に東京専門学校を設立するので、早稲田大学もまだこの頃にはありませんね。
ちょっとした町屋と屋敷地のほかは、のどかな農村風景ってかんじです。
新宿御苑は、江戸時代まで内藤家の屋敷だったのが、明治5年に大蔵省の農事試験場となり、
明治12年から宮内省所管となって「植物御苑」となるので、この地図はちょうど宮内省のものに
なったばかりのころの物なんですね。
そして明治38年5月、日露戦争勝利を記念して凱旋将軍の歓迎会が行われ、
それ以来「新宿御苑」と呼ばれるようになったんだとか。
火薬については、神田上水との合流地点である淀橋上流左岸に寛文年間に作られた水車があり、
農家の米や小麦を挽いていたのが、ペリー来航で軍備増強に目覚めた幕府が、ここで火薬製造を
命じる。
それが、他の場所の水車で、製造中の火薬が爆発し、淀橋住民は水車移転を要請したものの、
結局1854年6月に爆発事故が起こって、その震動は5町にわたり、大空が真っ黒になったという。
それで、名主も奉行所へ申し入れて、火薬製造は中止となり、元通りの製粉水車に戻ったと。
明大前も昔、火薬庫だったというし、水の流れと火薬には密接な関係があるのかもしれませんね。
御苑右下の火薬庫も、玉川上水の四谷大木戸からの分水(余水)の流れる先にあるみたいだし。
それから明治13年には、府中~新宿追分~四谷見附の区間で乗合馬車の運行が開始したようです。
============================================
明治20年の地図になると、山手線が開通し、新宿駅(初代)が出来ています。
地図では「新宿停車場」となっていますが、最初の駅名は「内藤新宿」です。
このころは、文献の通り、駅舎が青梅街道側を向いていますね。
所在地の地名は「角筈村 渡辺土手際」江戸時代の旗本三百俵・渡辺家の下屋敷跡だそうです。
こちらの地図では、新宿御苑内の道筋もかなり詳しく書いてありますね。で、
ここでむっちゃ、目をひくのが園内の左側に出来た池。なんか、魔物みたいに不気味な形してますね。
植物用の溜め池でしょうか。でも、このいっぱいの足みたいのは、もしかして鴨猟用???
明治5年に設けられた内藤新宿農事試験場では養蚕、製茶、牧畜などが研究されていて、
それがのちに「勧農寮」となり、欧米教師を招いて「農事修学場」を設けて洋種の果実や蔬菜・花などを研究、広範囲の品種改良、多植栽培をしたとあります。
新宿タカノフルーツがハイカラな果実店として先端をゆけたのも、新宿御苑の存在が大きいようです。
新宿駅の西側には茶畑があったようで、これは外貨獲得のために茶葉や養蚕の桑の生産を
政府が奨励した策のひとつみたいです。おもしろい。
============================================
こちらは明治28年の地図と、部分拡大。
明治22年開業の中央線(甲武鉄道)が増えてます。
駅舎の他に、山手線と中央線のホームができてますね、長い。
それに甲武の市街線ものびてますね。明治27年牛込まで、28年に飯田町まで開通しています。
でも、市電はまだみあたりません。
そして火薬庫だった所が、輜重廠となり白地になってますね。軍事機密って事で記載されなくなったんでしょうか。
新宿御苑は「新宿御料地」という表記になっています。
============================================
つぎは明治42年の実測図。今まで以上に密度が濃くなっています。
黄色いラインはのちの市電(元・東京市街鉄道→明治39年東京鉄道に)の線路。
明治36年に新宿~半蔵門の路線が開通しています。
それで、この新宿の表通りは別名「電車通り」と呼ばれるのですね。
(左)新宿駅の拡大図。
中央線(39年に甲武から改名)と山手線の線路がさらに増え、下側にも側線ができています。
そして、青梅街道を向いていた初代駅舎がなくなっています。
おなじく明治39年に二代目新宿駅本屋が完成したのです。
そのお陰で、青梅街道に比べて商店が少なかった甲州街道側にも賑わいがでてきます。
でも、京王線はまだありません。(特許申請で計画中くらいの段階かな)
そして追分辻の北側に、半ループ線のような線路と
そこから別れる留置線がのびる「東鉄車庫」があります。その左の向かいは新宿警察署です。
そのさらに北がわには大村子爵の大村邸、東大久保の前田侯爵の前田邸、番衆町の濱野邸があり、
その庭には水辺があります。これと、新宿御苑をあわせて、新宿には鴨場が4つあったとは、
「新宿うら町おもて町」に書いてあった通りです。
ブラタモリでも湿地のくぼみがのこってるとか、いってたかな?
ただし、新宿御苑は、あの変な多足池はなくなって、今の景色と同じ玉藻池になってますね。
(中)もと火薬庫だった輜重廠がふたたび地図上にあらわれてますね。
「兵器支廠倉庫」と「輜重兵営」となってます。その脇を市電が通り、入り口あたりに停留所も見えます。
その南側は「青山練兵場」です。そして、そのあいだを中央線が通っています。
あと「千駄ヶ谷」の駅が増えてますね。(明治37年開業)
(右)もうひとつ、めだつ近代建物が「東京監獄」。
紫の四角い敷地の中に建物が放射状になってる施設です。右隣の「市ヶ谷監獄」はじつは
明治12年の地図から「谷町の市谷監獄署」として載ってるんですが(明治8年開設)、
さらに明治37年、東京監獄が鍛冶橋から富久町に移転してきました。
前述「新宿うら町おもて町」に電車通り(表通り)に対しての、裏通りが囚人護送の道だったと
ありますが、地図を見ていると、たしかに一本奥まった方の通りの方が煩雑な表通りより歩きやすそうな気がします。
しかし、この地図の一年後、明治43年には市ヶ谷監獄の方が
豊多摩郡野方村に移転してしまいます。(豊多摩監獄→中野刑務所)
意外と、ならんでいた時期は数年なんですね・・・。
ついでに、同じ43年に、新宿駅の西側に煙草専売局の淀橋工場が開設しています。
明治45年には淀橋側に東京ガスのガスタンク(1個め)ができます。
つづき。淀橋編の地図ももらってきました。
左が淀橋の明治43年の地図、右が大正11年の地図です。
上記のガスタンクが諦聴寺の北側にふえたのがわかります。後年2個目ができます。
大正にはいってるので、西武軌道と京王線がそれぞれの街道上に開業していますね。
とくに京王線の電車内からは、このガスタンクがよく見えたんだとか。
(そして諦聴寺の手前と甲州街道上に戻る手前でカックンカックン、カーブしてますね。これは揺れそう)
というか、ガスタンクのもとの土地の名前が「銀世界」ってなんなんだ(笑)みため公園ぽいですが。
西武軌道は大正10年8月に荻窪村~淀橋町を開業、軌間は1067mmで単線、しかも開業するや
武蔵水電(大正3年に川越電気鉄道が神流川水力電気と合併)に合併され、
さらに大正11年11月1日に武蔵水電が帝国電灯に合併。しかし帝国電灯は軌道部門はいらなかったようで、同11月16日川越電気鉄道の創立者だった綾部利右衛門に西武軌道の路線ごと譲渡、綾部はこれを受けて(旧)西武鉄道を設立しました。
(※鉄道部門を担当する武蔵鉄道は大正11年8月15日に設立、しかし鉄道業の引継は手続上の都合から同年11月16日に実施されたため、帝国電灯は15日間だけ鉄道を経営した形になったという。
武蔵鉄道は譲渡されると同時に西武鉄道に改名しました、ってなんじゃこりゃ!)
なので、このころは武蔵水電から西武鉄道への過渡期まっただ中ですね、この子。すさまじい背景だ。
浄水場の北側に停留所があり「淀橋警察署前」と読めます。
さらに引き込み線を越えた辺りでもういっこ停留所が。これは「浄水場(地?)前」かなぁ。
この軌道は土盛りで引き込み線の上を通っているのか?青梅街道にそんな余裕あるのかな、単線なれど。
この地図だけだと、ちょっと確証はもてないですね。
そして淀橋といえば浄水場。用地が玉川上水からやや離れてしまい、高低差の問題もあって、
より上流の和田堀から分水する、真っ直ぐな新水路を浄水場の南西に作りました。
震災後はより強度の高い水道管を地中につくることになったため、この新水路は埋められますが
道路としては残ります。
浄水場の敷地内には濾過用の砂利を運び込むための中央線から分岐した引き込み線がありますね。
青梅街道をよこぎっている為、それ専用の踏切もありました。
中野への迂回路は別にあったようで、その踏切は一般向けではなかったようですが、
砂利列車はそれほど本数もないので通行は黙認されていたといいます。
浄水場の落成式は明治32年12月ですが、その数ヶ月前の32年7月はこの踏切で事故があったようで、
列車が青梅街道を横断中、荷車が通りかかり、機関士は頻りに汽笛をならして注意したが、
驚いた馬がその場で狂い立ち、みるみるうちに列車と衝突、首と胴を引ききられ転倒しそのまま粉々になったと。馬子は逃げて無事だったものの、持ち主が馬の賠償を持ち込んだ所、そこは本来荷車の通っていい場所ではないので、その要求ははねのけられたといいます。
飯田町には砂利輸送の終点があるので、中央線は浄水場への砂利搬入にも適していたんでしょうね。
============================================
ピンクの敷地は煙草専売局です。結構な面積、ですが新宿の明治20年代の地図では
「字 辻」とよばれる畑っぽかったんで、土地は余ってたんでしょうなぁ。
新宿駅の西側に甲州街道口のほかに、さらに青梅街道口という電車線ホームが設けられたのは、
どうもこの専売局の従業員のためっぽいですね。
煙草工場なので、がっちり赤煉瓦で敷地を囲っているのが地図からも分かります。
ちなみに専売局淀橋工場は昭和11年に東品川へ移転します。
その跡地に私鉄の総合ターミナルをつくろうという計画もあったみたいなんですが、
東京高速鉄道も東横電鉄も免許だけで着工できてないし、戦争だしで結局ながれたっぽいですね。
地図ではそのお隣に「女子学院」があります。
『新宿学』によると、明治中期から大正にかけて新宿駅に隣接して多くの私立学校が開校したのには、
その土地の所有者であった元松平家摂津守(尾張家支藩)の理解と協力があったからだろうと。
学校地のきっかけとなったのは、明治16年新潟の地主だった夫の遺産で上京したキリスト教徒の
加藤とし子らによる「女子独立学校」の開校で、明治31年に精華学園と改名します。
明治27年には築地にあったミッション系女子学院の療養施設・衛生園も誕生、
松平家から土地を譲り受けた在日本プレスビテリアン宣教師社団から、女子学院が借地したものでした。
大正11年の地図にはさらに「日本中学校」がふえていますね。
これは大正5年に麹町にあった日本中学校が松平家から用地を取得し移ってきたものだそう。
この学校は『明治の巨人・岩崎弥太郎』によると三菱による本格的な商業学校、
「三菱商業学校」の流れを汲む2つの学校のひとつであるという。
一つは明治14年に結成された自由党の幹部が自由民権運動のための学校をつくった「明治義塾」で、
この学校は人気があったものの文部省による禁止命令で卒業者を一人出しただけで廃校に。
本家の三菱商業学校も皇族・山階宮家から土地を買い、明治11年東京神田錦町に開校したのが大人気で、東京府に追加校地の借地願いを出すほどだったのに、明治17年、先の明治義塾に母屋を取られ
そのまま廃校となる。
そしてこの日本中学校は、大学南校(東大の前身)出身で5年間英国留学もした三菱商業教員・三浦重剛が、三菱商業の英語教育復校をめざして明治18年6月設立した「東京英語学校」が前身。
明治25年に「日本中学校」に改名するも、大正3年の死去まで創立者の三浦氏が校長を務めつづけました。
だからこの移転は、その死後ということになりますね。
『新宿駅が二つあった頃』の著者さんが通っていたのも、おそらくこの学校でしょう。
本の授業のなかで、折口信夫が壇上に立ってたんで「まじか!」と個人的にびびりました(笑)
これは昭和11年に再び世田谷区に移転し、名前も「日本学園」に改名します。
そして移転後のこの場所には朝日生命の建物が建ち、長い事西口の顔となっていたのですが、
近年「東京モード学園」と、再び学園の姿に(しかもそれまでの西新宿高層ビル群のなかでもさらに斬新なデザインで)変身し、あらたな新宿駅前の景色を生み出しているのは、面白い事です。
たしか、この他に工学院もあったはずだけど、これは関東大震災で校舎が焼けた工学院が、
日本中学校の敷地を借りて移転してきたからなので、この地図にはまだ載っていませんね。
女子学院の上の三角地帯に「文」とあるのは、公立の小学校じゃないかな~。たぶん。
============================================
ついでに十二社の池。明治43年の地図では「十二双」の表記になってますが、大正では「十二社」です。
明治と大正をみくらべると、少し池が細くなっているかな??
景勝地だったここは、明治から花街として栄えっていって、昭和10年代に最盛期を迎えます。
しかし昭和17年十二社通りの整備で池が埋めたてられてしまい、その勢いは衰えていったといいます。
淀橋周辺でフライングしてしまいましたが、つぎは大正の新宿駅周辺の地図にもどります。